Beschrijving

Moderne Benedenwoning in het Hart van Leiden – Hogewoerd 46 

Ben je op zoek naar een instapklare benedenwoning op een toplocatie in het bruisende centrum van Leiden? Dan is deze stijlvolle woning aan de Hogewoerd 46 absoluut het bekijken waard. Gelegen in een prachtig rijksmonument biedt deze benedenwoning een unieke mix van moderne luxe en historische charme. Ideaal voor starters, een stel of als pied-à-terre.

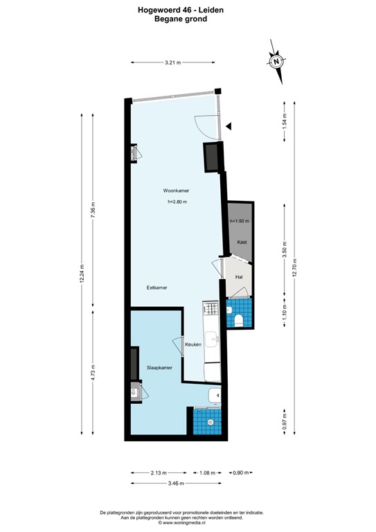
Met een woonoppervlakte van 47,2 m² beschikt deze woning over een comfortabele en doordachte indeling. De woning is volledig vernieuwd en afgewerkt met een luxe, hotelachtige uitstraling en hoogwaardige materialen.

Indeling:
De woning is gelegen op de begane grond. Bij binnenkomst valt direct de lichte en sfeervolle woonkamer op, mede dankzij de grote raampartijen aan de voorzijde. De woonkamer biedt voldoende ruimte voor een comfortabele zithoek en eettafel en staat in open verbinding met de moderne keuken. De keuken is voorzien van diverse inbouwapparatuur

Aan de achterzijde van de woning bevindt zich de rustige slaapkamer, met directe toegang tot de luxe badkamer ensuite. Deze badkamer beschikt over een douche en een wastafel. Het toilet is separaat en bereikbaar vanuit de hal, wat zorgt voor extra comfort en privacy.

Bijzonderheden:
•	Woonoppervlakte 47,2 m²
•	Energielabel A
•	Gelegen op de begane grond (benedenwoning)
•	Rijksmonument met luxe, hotelachtige afwerking
•	Lichte woonkamer met grote raampartijen
•	Moderne keuken met inbouwapparatuur
•	Slaapkamer aan de achterzijde
•	Luxe badkamer ensuite met douche en wastafel
•	Separaat toilet
•	Nieuwe, actieve VvE (bijdrage € 140,- p/m)
•	MJOP aanwezig (Meerjaren Onderhoudsplan)
•	Gelegen in het centrum van Leiden

Locatie:
De woning is gelegen in de geliefde wijk Levendaal-Oost, een karakteristieke en levendige buurt in het historische centrum van Leiden. Op loopafstand vind je een breed aanbod aan winkels, cafés, restaurants en culturele voorzieningen zoals musea en theaters. Ook het openbaar vervoer, Leiden Centraal Station en diverse uitvalswegen zijn uitstekend bereikbaar.

Kortom: een comfortabele, luxe benedenwoning op een fantastische locatie in één van de mooiste steden van Nederland.

Interesse? Neem contact met ons op voor een bezichtiging en laat je verrassen door deze sfeervolle woning!

Kenmerken