Beschrijving

In het hart van Leiden, in de sfeervolle en geliefde Hooglandsekerk-Choorsteeg, bevindt zich deze charmante en knusse stadswoning. De woning ligt op een uitzonderlijk gunstige locatie: op slechts een paar minuten lopen van de markt, het bruisende centrum, gezellige terrasjes, diverse restaurants, cafés en een ruime keuze aan winkels. Ook voorzieningen zoals een sportschool, supermarkt en andere dagelijkse benodigdheden liggen op maximaal vijf minuten loopafstand. Hierdoor geniet je van de perfecte combinatie van rustig wonen in een autovrije straat en direct toegang hebben tot alles wat de stad zo levendig en aantrekkelijk maakt. Dankzij de centrale ligging, omgeven door karakteristieke straatjes en het historische stadsbeeld, is dit een ideale stadswoning voor wie comfortabel, praktisch én met sfeer wil wonen.

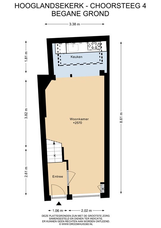
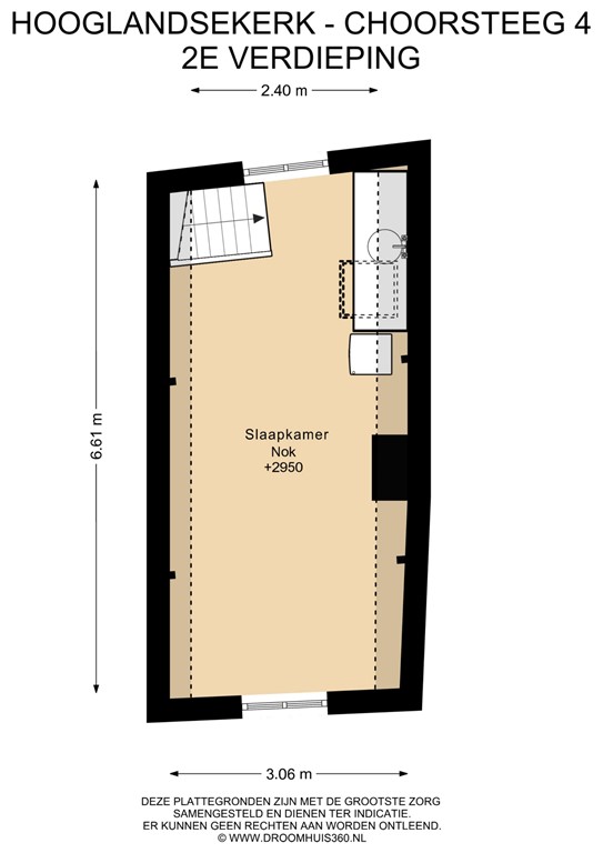
Het huis is slim verdeeld over drie verdiepingen en heeft een woonoppervlak van circa 67 vierkante meter. Op de begane grond bevindt zich de ruime, lichte woonkamer met een open keuken, voorzien van diverse apparatuur. Op de 1e en 2e verdieping bevinden zich twee goed formaat (slaap)kamers en een badkamer. Alle kamers zijn voorzien van een keukenblok, waardoor ze flexibel in te delen zijn.

Kortom, een unieke kans om te wonen op een van de mooiste plekjes van Leiden. Waar comfort, charme en de levendigheid van de stad perfect samenkomen.

Kenmerken