Beschrijving
Lammenschansweg 125, Leiden – Ruim, karaktervol en instapklaar familiehuis
Aan de geliefde Lammenschansweg, op een steenworp afstand van het centrum van Leiden, ligt dit indrukwekkende en royale herenhuis dat in een zeer goede staat verkeert. Hierbij is een uitstekende balans gevonden tussen modern wooncomfort en het behoud van authentieke details.
Bij binnenkomst valt direct de charme van de woning op. Originele paneeldeuren, kamers en suite op de begane grond én eerste verdieping, erkers, originele granitovloeren, parketvloeren, marmeren schouwen, ramen met geslepen glas en talrijke andere kleine authentieke details en ornamenten, zorgen voor een warme en karaktervolle sfeer. Tegelijkertijd is de woning volledig aangepast aan de eisen van deze tijd, met hoogwaardige afwerkingen en moderne installaties.
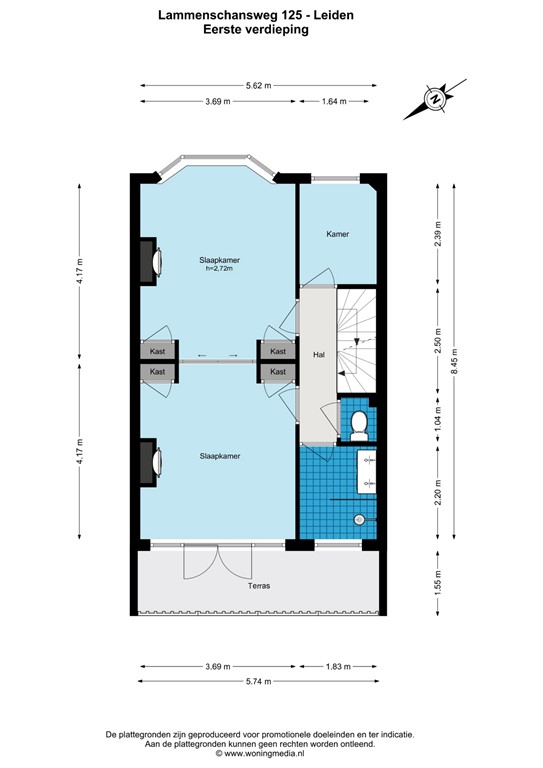
De woning beschikt over maar liefst vijf volwaardige slaapkamers en een werk/studeerkamer die desgewenst kan worden omgebouwd tot tot een zesde slaapkamer, wat het huis uitermate geschikt maakt voor grote gezinnen, thuiswerken of logees. Daarnaast zijn er twee moderne badkamers, stijlvol uitgevoerd en voorzien van alle comfort. De klassiek uitgevoerde maatwerkkeuken is voorzien van een granieten werkblad en een gootsteen met zwart-wit mozaïektegels.
Zowel aan de voor- als achterzijde beschikt de woning over buitenruimte. De voortuin biedt privacy en een vriendelijke uitstraling aan de straatzijde en ruimte voor het stallen van fietsen. De ruime achtertuin met schuur is zonnig gelegen en biedt tot laat in de avond zon, ideaal voor lange zomeravonden, spelende kinderen of ontspannen borrels.
De ligging is bijzonder gunstig. De woning bevindt zich op loopafstand van station Leiden Lammenschans en heeft een uitstekende aansluiting op uitvalswegen zoals de A4, A44 en N11. Ook het historische centrum van Leiden is snel en gemakkelijk bereikbaar.
De Tuinstadwijk staat bekend om haar groene karakter, brede lanen en prettige woonomgeving. Het is een wijk met een dorpsgevoel, terwijl alle stedelijke voorzieningen binnen handbereik zijn. Op korte afstand ligt het bruisende centrum van Leiden, met zijn gezellige terrassen, musea en speciaalzaken. Uiteraard mag ook de bekende Leidse markt niet ontbreken: meerdere dagen per week een levendige plek voor verse producten, bloemen en lokale gezelligheid.
Kortom: een royaal, karakteristiek en uitstekend gelegen woonhuis waar sfeer, ruimte en comfort samenkomen. Een unieke kans voor wie stijlvol en centraal wil wonen in Leiden.
Plattegronden
Lammenschansweg 125 - Leiden - Begane_grond - 2D.jpg
Lammenschansweg 125 - Leiden - Begane_grond - 3D _1.jpg
Lammenschansweg 125 - Leiden - Begane_grond - 3D _2.jpg
Lammenschansweg 125 - Leiden - 1e_verdieping - 2D.jpg
Lammenschansweg 125 - Leiden - 1e_verdieping - 3D _3.jpg
Lammenschansweg 125 - Leiden - 1e_verdieping - 3D _4.jpg
Lammenschansweg 125 - Leiden - 2e_verdieping - 2D.jpg
Lammenschansweg 125 - Leiden - 2e_verdieping - 3D _5.jpg
Lammenschansweg 125 - Leiden - 2e_verdieping - 3D _6.jpg
Lammenschansweg 125 - Leiden - 3e_verdieping - 2D.jpg
Lammenschansweg 125 - Leiden - 3e_verdieping - 3D _7.jpg
Lammenschansweg 125 - Leiden - 3e_verdieping - 3D _8.jpg
Lammenschansweg 125 - Leiden - NEN plattegrond - 2D.jpg