| Prijs | € 1.850.000,- k.k. |
| Type object | Woonhuis, grachtenpand, tussenwoning |
| Perceeloppervlakte | 275 m² |
| Woonoppervlakte | 532,9 m² |
| Aanvaarding | In overleg |
| Status | Nieuw in verkoop |
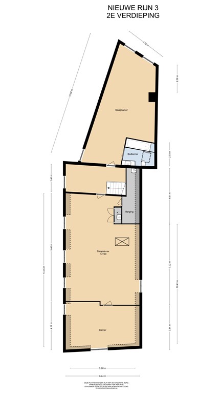
Welkom bij de verkoop van een echte parel in het historische hart van Leiden: de Nieuwe Rijn 3! Dit majestueuze rijksmonument biedt niet alleen een charmante historische uitstraling, maar ook een ongeëvenaarde locatie en veelzijdigheid die uw verbeelding zal prikkelen. Met een ruimte van maar liefst 533m2 aan woonoppervlakte en 101m2 aan overig inpandige ruimte, is deze woning een ware oase van mogelijkheden. Of u nu droomt van een sfeervol woonhuis, een inspirerend kantoor aan huis, een praktijkruimte of een unieke winkel, hier vindt u de perfecte ruimte om uw visie tot leven te brengen. Geniet van de serene rust en zonovergoten schoonheid van de tuin, terwijl u uitkijkt op de indrukwekkende burcht van Leiden. Dit adembenemende uitzicht, zowel vanuit de tuin als vanuit de woning zelf, laat u keer op keer betoveren. De Nieuwe Rijn 3 beschikt over maar liefst 12 kamers en 3 badkamers, waardoor het zowel een ruimte biedt voor ontspanning als voor werk en creativiteit. Deze flexibele indeling maakt het mogelijk om uw leefruimte aan te passen aan al uw behoeften en verlangens. Een korte doorloop: De begane grond verwelkomt u met een charmante entree, voorzien van een winkel/kantoorruimte aan de voorzijde die mogelijkheden biedt voor ondernemerschap of een prachtige werkplek. Een hal leidt naar het achterhuis, waar u kunt genieten van een ruime woonkamer, eetkamer, berging, toilet en een goed uitgeruste keuken. De achtertuin, met een schilderachtig uitzicht op de imposante Burcht, vormt een oase van rust in het hart van de stad. Op de eerste verdieping vindt u een overloop met toilet, drie slaapkamers en een badkamer aan de achterzijde, compleet met wasmachineaansluiting, douchehoek en wastafel. Aan de voorzijde bevindt zich een majestueuze slaapkamer met inloopkast en een luxueuze badkamer voorzien van inloopdouche, ligbad, toilet en wastafel. Een heerlijke raampartij met uitzicht over de prachtige Nieuwe Rijn! De tweede verdieping biedt een overloop met twee slaapkamers, CV-opstelling en berging aan de achterzijde, evenals een slaapkamer met een eigen badkamer aan de voorzijde, compleet met ligbad, toilet en wastafel. De zolderverdieping en kelder voegen extra veelzijdigheid toe aan dit bijzondere pand. Dit adembenemende huis is meer dan alleen een woning; het is een unieke kans om de rijke geschiedenis van Leiden te omarmen terwijl u geniet van het moderne comfort van vandaag. Mis deze kans niet om een stukje van de tijd te bezitten in een van de meest geliefde steden van Nederland. Neem vandaag nog contact met ons op voor meer informatie en laat uw dromen werkelijkheid worden in de Nieuwe Rijn 3!
| Referentienummer | 00337 |
| Vraagprijs | € 1.850.000,- k.k. |
| Inrichting | Niet gestoffeerd |
| Inrichting | Niet gemeubileerd |
| Status | Nieuw in verkoop |
| Aanvaarding | In overleg |
| Aangeboden sinds | Dinsdag 3 maart 2026 |
| Type object | Woonhuis, grachtenpand, tussenwoning |
| Soort bouw | Bestaande bouw |
| Bouwperiode | 1750 |
| Dakbedekking | Dakpannen |
| Type dak | Samengesteld |
| Keurmerken | Bouwkundige keuring |
| Isolatievormen | Dakisolatie Grotendeels dubbel glas Muurisolatie Vloerisolatie |
| Perceeloppervlakte | 275 m² |
| Woonoppervlakte | 532,9 m² |
| Inhoud | 1.743 m³ |
| Oppervlakte overige inpandige ruimten | 101,3 m² |
| Aantal bouwlagen | 3 (en 1 kelder) |
| Aantal kamers | 12 (waarvan 9 slaapkamers) |
| Aantal badkamers | 3 (en 2 aparte toiletten) |
| Ligging | Dichtbij openbaar vervoer In centrum Nabij school Nabij snelweg Nabij winkelcentrum |
| Type | Achtertuin |
| Hoofdtuin | Ja |
| Oriëntering | Oosten |
| Staat | Normaal |
| CV ketel | ATAG |
| Warmtebron | Gas |
| Bouwjaar | 2018 |
| Combiketel | Ja |
| Eigendom | Eigendom |
| Warm water | CV-ketel |
| Verwarmingssysteem | Centrale verwarming |
| Ventilatie methode | Natuurlijke ventilatie |
| Badkamervoorzieningen Badkamer 1 | Inloopdouche Ligbad Toilet Wastafelmeubel |
| Badkamervoorzieningen Badkamer 2 | Douche Wasmachineaansluiting Wastafel |
| Badkamervoorzieningen Badkamer 3 | Toilet Wastafel |
| Heeft kabel-tv | Ja |
| Tuin aanwezig | Ja |
| Telefoonaansluiting aanwezig | Ja |
| Beschikt over een internetverbinding | Ja |
| Kadastrale aanduiding | Leiden I 3237 |
| Perceeloppervlakte | 275 m² |
| Omvang | Geheel perceel |
| Eigendomsituatie | Eigen grond |