Beschrijving

Ruime Tussenwoning aan de Schelpenkade 57, Leiden – Modern, Duurzaam en Perfect Gelegen!

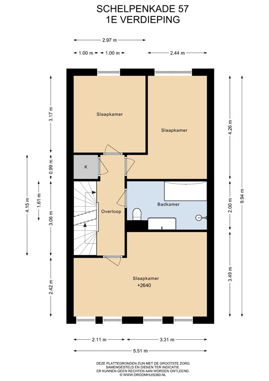
Welkom in deze prachtig gelegen tussenwoning aan de Schelpenkade 57 in de geliefde Tuinstadswijk van Leiden. Dit ruime en lichtvolle huis uit 2012 biedt maar liefst 158 m² woonoppervlakte en beschikt over 5 à 6 slaapkamers – ideaal voor een groot gezin of voor diegenen die extra ruimte zoeken voor een thuiswerkplek of hobbykamer. Bovendien is het huis voorzien van energiezuinige kenmerken en heeft het een energielabel A, met de extra voordelen van 11 zonnepanelen uit 2023, die niet in het energielabel zijn meegenomen en dus bijdragen aan nog lagere energiekosten.

Kenmerken van de woning:
•	Woonoppervlakte: 158 m²
•	Slaapkamers: 5 à 6, ideaal voor een groot gezin of een werk-/hobbyruimte
•	Energielabel: A (met extra zonnepanelen uit 2023 voor nóg meer energie-efficiëntie)
•	Tuin: sfeervolle stadstuin met achterom
•	Bouwjaar: 2012, dus volledig up-to-date in afwerking en isolatie
•	Moderne afwerking: Het huis is goed onderhouden en instapklaar

Deze woning biedt niet alleen veel ruimte, maar ook een gezellige, goed onderhouden tuin met overkapping en achterom, waar je kunt genieten van de zon en de rust. De grote ramen zorgen voor veel natuurlijk licht in de woning, waardoor het interieur altijd helder en aangenaam aanvoelt.

Moderne Keuken – Voor de Kookliefhebber
De keuken mogen we niet vergeten. De luxe, moderne keuken is uitgerust met inbouwapparatuur van zoals een kookplaat, oven, magnetron, Quooker, vaatwasser, koelkast en vriezer. Het strakke design met hoogwaardige afwerking biedt alles wat je nodig hebt om in stijl te koken en te entertainen. Of je nu een snelle maaltijd bereidt of een uitgebreid diner, deze keuken biedt alle ruimte en comfort.

Luxe Badkamer – Ontspanning in Eigen Huis
De badkamer is fris en modern. Met een inloopdouche, dubbele wastafel en een ligbad is het de perfecte plek om te ontspannen na een drukke dag. Het stijlvolle tegelwerk en de hoogwaardige afwerking zorgen voor een serene, moderne uitstraling die het geheel tot een wellness-ervaring maakt.

De Tuinstadswijk – Rust, Groen en Toegankelijk
De woning is gelegen in de Tuinstadswijk, een gewilde en rustige wijk in Leiden, die bekend staat om zijn groene uitstraling en fijne woonklimaat. De wijk biedt een perfecte balans tussen stadscomfort en natuur. Je woont hier in alle rust, maar hebt tegelijkertijd alle voorzieningen binnen handbereik. De leuke, kindvriendelijke straatjes en groene pleinen maken het tot een ideale plek voor gezinnen, maar ook voor wie op zoek is naar een rustige omgeving met gemakkelijke toegang tot het centrum van de stad.

Het Historische Centrum van Leiden – Alles Binnen Handbereik
De woning ligt op een prachtige locatie vlakbij het historische centrum van Leiden. In slechts een paar minuten wandelen bereik je de centraal gelegen markt, waar je kunt genieten van verse producten en gezellige kraampjes. Het centrum biedt een enorme variëteit aan restaurants, cafés, en winkels – van sfeervolle boetieks tot beroemde horecagelegenheden. Bovendien bevinden zich in de buurt diverse musea, historische bezienswaardigheden en cultuur, die Leiden zo uniek maken.
Daarnaast zijn het Leiden Centraal Station en diverse uitvalswegen gemakkelijk bereikbaar, waardoor je in no time de rest van de stad of het land kunt verkennen.

Wat maakt deze woning zo bijzonder?
•	Ruimte: Met 158 m² en 5/6 slaapkamers is er genoeg ruimte voor een groot gezin of verschillende woonwensen.
•	Duurzaam: Energielabel A en recent geïnstalleerde zonnepanelen (2023) maken deze woning extra energiezuinig en toekomstbestendig.
•	Locatie: Gelegen in de groene Tuinstadswijk, met het historische centrum en alle faciliteiten van Leiden op loopafstand.
•	Moderne Keuken: Luxe inbouwapparatuur en een strak, eigentijds design.
•	Luxe Badkamer: Met inloopdouche, dubbele wastafel en een ligbad voor ultiem comfort.
•	Tuin: Gezellige tuin met achterom – een ideale plek voor buiten genieten of het creëren van een rustige oase in de stad.

Deze woning biedt het beste van twee werelden: modern, energiezuinig wonen in een rustige, groene omgeving, met het bruisende stadsleven van Leiden binnen handbereik. Een ideale plek voor diegenen die ruimte, comfort en duurzaamheid zoeken.

Maak snel een afspraak voor een bezichtiging en ontdek zelf waarom Schelpenkade 57 jouw droomhuis kan zijn!

Kenmerken