Beschrijving
Moderne, instapklare eengezinswoning met een zonnige en ruime tuin
Bent u op zoek naar een moderne, instapklare eengezinswoning met een zonnige tuin? Dan is deze woning aan de Soembastraat 65 precies wat u zoekt. Met een woonoppervlakte van circa 107 m², drie slaapkamers en een verzorgde afwerking biedt deze woning comfortabel woonplezier voor het hele gezin.
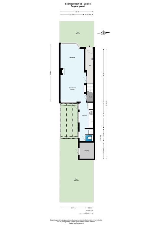
De lichte woonkamer vormt het hart van het huis en sluit mooi aan op de zonnige achtertuin. De ruime tuin is voorzien van een berging en praktische achterom, ideaal voor fietsen of tuinaccessoires.
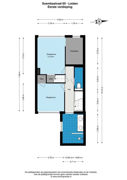
Op de verdiepingen bevinden zich drie goed bemeten slaapkamers, waarvan één beschikt over een inloopkast. De moderne badkamer is stijlvol uitgevoerd en voorzien van een dubbele wastafel en een comfortabele inloopdouche. Het toilet is apart, wat extra praktisch is voor een gezin. De hedendaagse afwerking in de gehele woning zorgt ervoor dat u hier zonder klussen kunt intrekken.
De Kooi is een levendige en kindvriendelijke wijk in Leiden-Noord. De buurt kenmerkt zich door een prettige mix van karakteristieke woningen en vernieuwde voorzieningen. In de directe omgeving vindt u winkels, supermarkten, scholen, sportfaciliteiten en speelgelegenheden. Het bruisende centrum van Leiden is op korte fietsafstand bereikbaar en ook de uitvalswegen richting de A4 en A44 zijn goed toegankelijk. Openbaar vervoer is eveneens in de nabijheid aanwezig.
Kortom: een moderne en ruime gezinswoning met zonnige tuin op een centrale locatie in Leiden, een ideale plek om thuis te komen.
Plattegronden
Soembastraat 65 - Leiden - Perceeltekening.jpg
Soembastraat 65 - Leiden - Perceeltekening - 3D _7.jpg
Soembastraat 65 - Leiden - Perceeltekening - 3D _8.jpg
Soembastraat 65 - Leiden - Begane_grond - 2D.jpg
Soembastraat 65 - Leiden - Begane_grond - 3D _1.jpg
Soembastraat 65 - Leiden - Begane_grond - 3D _2.jpg
Soembastraat 65 - Leiden - 1e_verdieping - 2D.jpg
Soembastraat 65 - Leiden - 1e_verdieping - 3D _3.jpg
Soembastraat 65 - Leiden - 1e_verdieping - 3D _4.jpg
Soembastraat 65 - Leiden - 2e_verdieping - 2D.jpg
Soembastraat 65 - Leiden - 2e_verdieping - 3D _5.jpg
Soembastraat 65 - Leiden - 2e_verdieping - 3D _6.jpg
Soembastraat 65 - Leiden - NEN plattegrond - 2D.jpg