Beschrijving

ENGLISH BELOW

Deze prachtig gemoderniseerde zes-kamerwoning, gelegen aan de rand van de Merenwijk, verwelkomt u met ruimte, comfort en vakmanschap van hoog niveau. Vanaf het moment dat u binnenstapt, is duidelijk dat aan elk detail is gedacht. Elke ruimte heeft dezelfde hoogwaardige afwerking, wat resulteert in een woning die harmonieus, luxe en direct uitnodigend aanvoelt.

Recent gerenoveerd met hoogwaardige materialen, biedt deze woning circa 20 m² extra woonruimte dankzij een dakopbouw op de tweede verdieping. Het resultaat is een volledig gemoderniseerde, toekomstbestendige woning die direct te betrekken is, u hoeft alleen nog uw meubels neer te zetten en te genieten van een zorgeloze overgang.

Belangrijkste renovaties:
• Moderne open keuken met hoogwaardige inbouwapparatuur
• Extra badkamer op de tweede verdieping met inloopdouche
• Uitstekende isolatie: HR++ beglazing, dakisolatie en vloerverwarming op alle verdiepingen
• Volledig vernieuwde meterkast en elektrische installatie; bekabeld tv- en internet op begane grond en eerste verdieping
• Vloerverwarming op elke verdieping, met per ruimte individueel regelbaar via Bluetooth
• Nieuwe deuren en kozijnen (eerste en tweede verdieping) met HR++ glas (2024)
• Programmeerbare lichtscenario’s op begane grond, eerste verdieping en trappen
• Zonwering buiten en elektrische rolluiken op eerste en tweede verdieping
• Nieuwe eikenhouten trappen 
• Warme en stijlvolle woning op een prettige locatie aan de rand van de Merenwijk
• Woning met 5 slaapkamers, 3 toiletten en 2 badkamers

Ligging
De woning beschikt over een voor- en achtertuin en ligt op loopafstand van het winkelcentrum Merenwijk, met onder andere Albert Heijn, Lidl en diverse andere winkels, waardoor dagelijkse boodschappen eenvoudig zijn. Het nabijgelegen park biedt veel groen en recreatiemogelijkheden, waaronder een kinderboerderij. Fietsers profiteren van een mooie fietsroute direct naar het centrum van Leiden of de recreatiegebieden van de Kagerplassen. Een basisschool ligt op slechts 100 meter afstand, wat deze woning ideaal maakt voor gezinnen die op zoek zijn naar ruimte, comfort en gemak.

Indeling

Begane grond
Voortuin en vrijstaande stenen berging. Entree met ruime hal, hangtoilet en bergkast. Via schuifdeuren bereikt u de moderne open keuken en woonkamer. De keuken is voorzien van een inductiekookplaat met geïntegreerde afzuiging, twee Siemens combi-ovens, Siemens vaatwasser, aparte koelkast en vriezer, Quooker, roestvrijstalen spoelbak en veel kastruimte. De woonkamer beschikt over een nieuwe houten vloer, strak gestucte wanden en plafonds en ingebouwde spotverlichting die via schakelaar of Bluetooth te bedienen is. Grote ramen aan de achterzijde bieden uitzicht op de fraai aangelegde, op het westen gelegen tuin. 

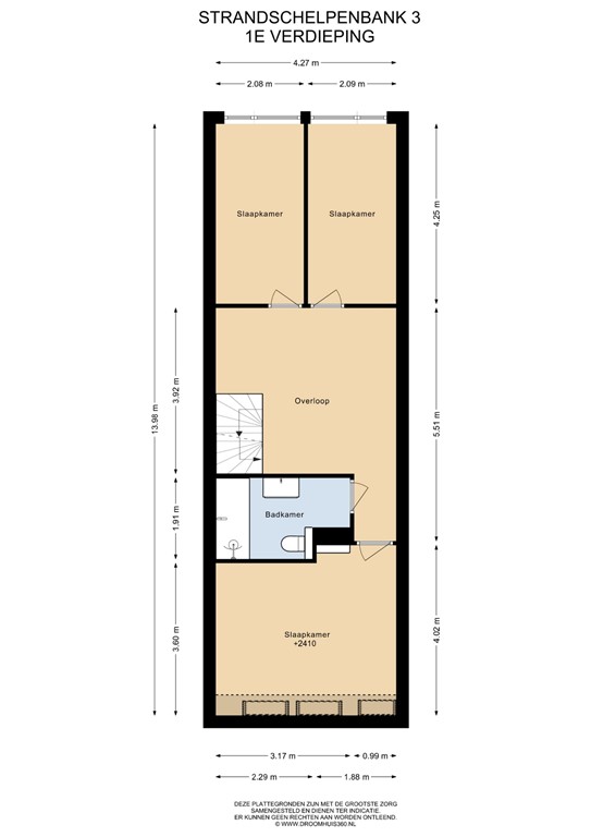
Eerste verdieping
Door het dichtmaken van de vide is een ruime overloop ontstaan, ideaal als werk- of studeerplek dankzij een vaste internetaansluiting. Deze verdieping is voorzien van een nieuwe houtlook PVC-vloer met per ruimte regelbare vloerverwarming. Aan de achterzijde bevinden zich twee ruime slaapkamers met nieuwe kunststof draai-kiepramen, HR++ glas en elektrische rolluiken. Aan de voorzijde ligt de hoofdslaapkamer met Velux dakramen. De stijlvolle badkamer is voorzien van een gietvloer, ligbad met spatwand, wastafelmeubel, hangtoilet en designradiator.

Tweede verdieping
Overloop met twee elektrisch bedienbare dakramen die automatisch sluiten bij regen. Hier bevinden zich de aansluiting voor de wasmachine en de technische ruimte met mechanische ventilatie en de cv-installatie. Aan de voorzijde ligt een lichte slaapkamer met een eigen badkamer (gerealiseerd in 2024) voorzien van een inloopdouche met glazen wand, wastafelmeubel en een derde toilet, ideaal voor gasten. De tweede slaapkamer aan de achterzijde wordt momenteel gebruikt als kantoor. Deze gehele verdieping profiteert van de dakopbouw uit 2024 en is voorzien van een mooie PVC-vloer met vloerverwarming.

Achtertuin
De professioneel aangelegde achtertuin op het westen (2020) beschikt over grote keramische tegels, een gazon en beplante borders. Met zon gedurende de middag en avond is dit de perfecte plek voor buiten eten en zomerse bijeenkomsten.

--------------------------------------------------------------------------
This beautifully modernized six-room home, located on the edge of the Merenwijk, welcomes you with space, comfort, and impeccable craftsmanship. From the moment you step inside, it’s clear that every detail has been thoughtfully designed. Each room reflects the same high standard of finish, resulting in a home that feels harmonious, luxurious, and immediately inviting.

Recently renovated (<2 years ago) with high-quality materials, this property offers approximately 20 m² of additional living space thanks to a roof extension on the second floor and the enclosure of the mezzanine on the first. The result is a fully updated, future-proof home that is completely move-in ready, simply bring your furniture and enjoy the comfort of a stress-free transition.

Renovation highlights:
•	Modern open-plan kitchen with quality built-in appliances
•	Additional bathroom on the second floor featuring a walk-in shower
•	Excellent insulation: HR++ glazing, roof insulation, and underfloor heating through all
floors
•	Fully renewed meter cupboard and electrical system; wired cable TV and internet on
ground and first floors
•	Underfloor heating on every floor, with Bluetooth-controlled individual zones
•	New doors and window frames (first and second floors) with HR++ glazing (2024)
•	Programmable lighting scenarios on the ground, first floors and staircases
•	Exterior sun blinds and electric shutters on first and second floors
•	New oak staircases 
•	A warm and stylish home in a pleasant location on the edge of Merenwijk
•	5 bedroom 3 toilet/2 bathroom house

Location

The home offers both front and back gardens and sits within walking distance of the large local Merenwijk shopping center, including Albert Heijn, Lidl and others, making daily errands simple. The nearby park provides ample green space for recreation, including a children’s petting zoo. Cyclists will appreciate the scenic bike path leading directly to Leiden’s city center or the Kagerplassen recreational lakes. A primary school is just 100 meters away, making this an ideal home for families seeking space, comfort, and convenience.

Layout

Ground Floor
Front garden and detached stone shed. Entrance hall with spacious hallway, wall-hung toilet, and storage cupboard. Sliding doors open to the modern open-plan kitchen and living room. The kitchen is equipped with an induction cooktop with integrated extractor, two Siemens combination ovens, Siemens dishwasher, separate refrigerator and freezer, Quooker, stainless-steel sink, and extensive cabinetry. The living room features a new wooden floor, freshly plastered walls and ceilings, and integrated spotlights controllable by switch or Bluetooth. Large rear windows offer a view of the beautifully landscaped west-facing garden.

First Floor
Closing the former mezzanine has created a spacious landing, ideal as a study or workspace thanks to a built-in wired internet connection. This floor features a new wood-look vinyl PVC floor with individually controlled underfloor heating zones. At the rear are two spacious bedrooms with new uPVC tilt-and-turn windows, HR++ glazing, and electric shutters. At the front is the master bedroom with Velux skylights. The stylish bathroom includes a cast floor, bathtub with splashback, vanity, wall-hung toilet, and designer radiator.

Second Floor
Landing with two electrically operated skylights that close automatically when it rains. Here you’ll find the washing machine connection and the technical room housing mechanical ventilation and the central heating system. At the front is a bright bedroom with a private bathroom (completed 2024) featuring a walk-in shower with glass splashback, vanity, and a third toilet, perfect for guests. The second bedroom at the rear is currently used as an office. This entire floor benefits from the 2024 roof extension and features a beautiful PVC floor with underfloor heating.

Back Garden
The professionally landscaped west-facing garden (2020) features large ceramic tiles, lawn, and planted borders. With sun throughout the afternoon and evening, it is ideal for outdoor dining and summer gatherings.

Kenmerken