Beschrijving
Comfortabel en nieuw wonen in een monumentaal grachtenpand
Utrechtse Veer 4B bevindt zich op de eerste etage van een volledig gerenoveerd Rijksmonument, midden in het historische centrum van Leiden. Het appartement combineert hotel chique afwerking met monumentale charme, waaronder authentieke balkenplafonds en grote ramen met uitzicht over de Nieuwe Rijn en de Herengracht.
In 2025 is de woning volledig vernieuwd. Van waterleiding tot elektra en van meterkast tot riool, alles is modern en toekomstbestendig uitgevoerd. De woning beschikt over vloerverwarming waardoor er geen radiatoren aanwezig zijn en het vloeroppervlak optimaal te gebruiken is. Verwarming en koeling worden verzorgd door een warmtepomp. Dankzij deze duurzame renovatie heeft het appartement energielabel A+. Dit levert extra leenruimte op en een mogelijke rentekorting.
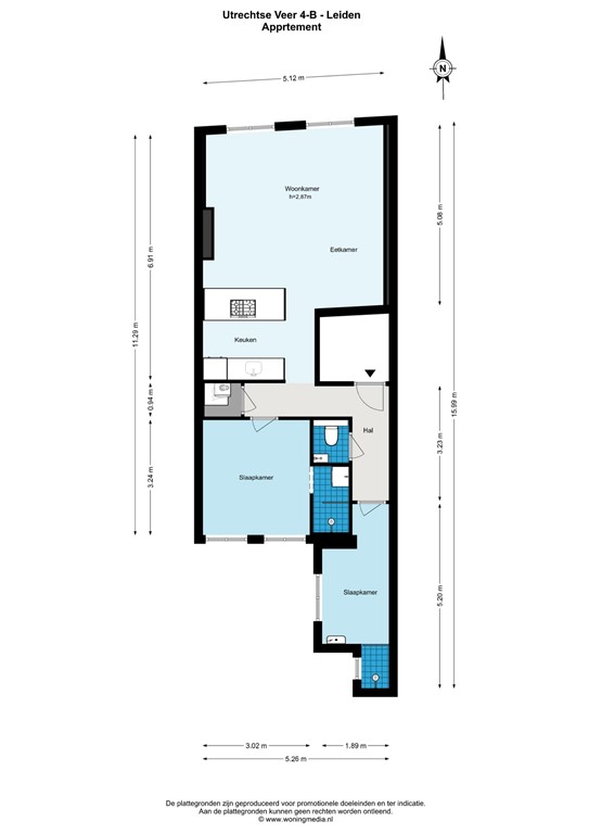
Met een woonoppervlak van circa 61 m² biedt dit appartement twee slaapkamers, beide met een eigen badkamer. Daarnaast is er een apart toilet. De keuken is luxe uitgevoerd en voorzien van AEG inbouwapparatuur. Het kookeiland vormt een centraal punt in de ruimte en maakt de woonkeuken een fijne plek om te koken en te verblijven.
Door de ligging op de eerste verdieping geniet je van prachtig zicht op de grachten en valt het licht mooi naar binnen door de grote raampartijen. Alles is nieuw en volledig afgewerkt waardoor je alleen nog hoeft te verhuizen.
Highlights
• Rijksmonument met energielabel A+
• Woonoppervlak circa 61 m²
• Volledig vernieuwd in 2025
• Van waterleiding tot elektra en van meterkast tot riool alles is nieuw
• Vloerverwarming en vloerkoeling via warmtepomp
• Geen radiatoren en optimaal bruikbaar vloeroppervlak
• Luxe keuken met AEG inbouwapparatuur en kookeiland
• Twee slaapkamers beide met eigen badkamer
• Apart toilet
• Authentieke details zoals balken in het plafond
• Grote ramen met uitzicht over de Nieuwe Rijn en de Herengracht
• Turnkey en hotelchique afgewerkt
• Gelegen op de eerste verdieping
• Indicatieve VvE-bijdrage 150 euro per maand
• GWE-verrekening op basis van verdeling eigendomsaandeel
Indeling
Via de statige hal bereik je de trap. Wanneer je de trap volgt kom je uit bij de entree van het appartement. De woonruimte ligt aan de voorzijde en biedt een schitterend uitzicht over de Nieuwe Rijn en de Herengracht door de grote ramen. De luxe keuken met kookeiland en AEG apparatuur vormt het hart van de woning.
Het appartement beschikt over twee slaapkamers, beide met een eigen badkamer. Daarnaast is er een apart toilet.
Omgeving
Utrechtse Veer ligt in het centrum van Leiden met alle voorzieningen op loopafstand. Terrassen, restaurants, cafés, winkels, musea en het Singelpark liggen binnen handbereik. Ook Leiden Centraal en de uitvalswegen richting Den Haag, Amsterdam en de kust zijn snel bereikbaar. Een plek waar historie, cultuur en stadscomfort samenkomen.
Plattegronden
Utrechtse Veer 4-B - Leiden - Appartement - 2D.jpg
Utrechtse Veer 4-B - Leiden - Appartement - 3D _1.jpg
Utrechtse Veer 4-B - Leiden - Appartement - 3D _2.jpg
Utrechtse Veer 4-B - Leiden - NEN plattegrond - 2D.jpg