| Prijs | € 1.250.000,- k.k. |
| Type object | Woonhuis, eengezinswoning, geschakelde twee onder een kap woning |
| Perceeloppervlakte | 202 m² |
| Woonoppervlakte | 170,1 m² |
| Aanvaarding | In overleg |
| Status | Verkocht onder voorbehoud |
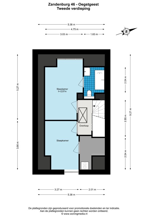
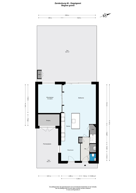
Zandenburg 46 – Luxe wonen aan de Rijn in het groene Nieuw-Rhijngeest (Oegstgeest) Welkom aan de Zandenburg 46: een exclusieve, geschakelde 2-onder-1-kapwoning van maar liefst 170 m², gelegen op een unieke locatie direct aan de Rijn. Deze in 2023 opgeleverde woning combineert modern wooncomfort, hoogwaardige afwerking en duurzaamheid met een uitzonderlijk vrij uitzicht over het water. Gelegen in de geliefde, jonge wijk Nieuw-Rhijngeest in Oegstgeest woont u hier in een rustige, groene en waterrijke omgeving. De wijk kenmerkt zich door brede opzet, veel groenstroken en directe verbinding met de natuur. Tegelijkertijd zijn uitvalswegen richting Leiden, Den Haag en Amsterdam binnen handbereik, en bevinden scholen, sportfaciliteiten en winkels zich op korte afstand. Een ideale combinatie van rust, ruimte en bereikbaarheid. Binnen ervaart u direct de luxe en ruimte. De royale, lichte woonkamer is speels ingedeeld dankzij de L-vorm en biedt meerdere zitgedeeltes, waaronder een aparte tv-hoek. Grote raampartijen zorgen voor een prachtige lichtinval en een panoramisch uitzicht over de Rijn. De luxe leefkeuken van Barthen Keuken Design vormt het hart van de woning. Deze keuken is uitgerust met hoogwaardige Miele apparatuur, waaronder een grote koelkast, separate vriezer, stoomoven, combi-oven, twee vaatwassers, een inductiekookplaat met geïntegreerde afzuiging, wijnklimaatkast en Quooker. Een perfecte plek voor koken, borrelen en samenkomen. De eerste verdieping beschikt over drie ruime slaapkamers, waaronder een master bedroom met inloopkast. De moderne badkamer is voorzien van een dubbele douche en dubbele wastafel. Daarnaast is er een separaat toilet. Op de tweede verdieping vindt u nog eens twee slaapkamers, een aparte wasruimte en een tweede badkamer met ligbad, toilet en wastafelmeubel. De royale vliering biedt extra praktische bergruimte. De achtertuin is een absoluut hoogtepunt: circa 9 meter breed en 9 meter diep, gelegen op het zonnige zuiden en direct aan het vaarwater van de Rijn. Hier geniet u van de zon van ’s ochtends tot in de avond (zomer: ca. 09:00 – 20:45 uur). Met een zwemtrap, de mogelijkheid tot het aanleggen van een bootje en zelfs het realiseren van een eigen ligplaats, ervaart u hier dagelijks een vakantiegevoel. Extra ligplaatsen bevinden zich bovendien op loopafstand. Op het gebied van duurzaamheid is deze woning volledig toekomstbestendig. Voorzien van een bodemwarmtepomp (die tevens koelt in de zomer), triple glas en maar liefst 22 zonnepanelen. Het energielabel A+++ is vastgesteld zonder de zonnepanelen – wat het energieverbruik bijzonder gunstig maakt. Met twee eigen parkeerplaatsen en een berging is ook het praktische aspect volledig verzorgd. Kortom: een unieke kans om luxe, duurzaam en direct aan het water te wonen in één van de meest geliefde nieuwbouwwijken van Oegstgeest. Bijzonderheden: • Ruime begane grond van 82 m2 • Licht huis • Gasloos, lage energienota • Bodemwarmtepomp met koeling • 2 parkeerplaatsen • Hele dag zon • 2 badkamers • Mogelijkheid om privé ligplaats in tuin te maken (binnenkort meerdere ligplaatsen op loopafstand)
| Referentienummer | 00349 |
| Vraagprijs | € 1.250.000,- k.k. |
| Inrichting | Niet gestoffeerd |
| Inrichting | Niet gemeubileerd |
| Status | Verkocht onder voorbehoud |
| Aanvaarding | In overleg |
| Aangeboden sinds | Donderdag 9 april 2026 |
| Laatste wijziging | Maandag 11 mei 2026 |
| Type object | Woonhuis, eengezinswoning, geschakelde twee onder een kap woning |
| Soort bouw | Bestaande bouw |
| Bouwperiode | 2023 |
| Dakbedekking | Dakpannen |
| Type dak | Zadeldak |
| Isolatievormen | Volledig geïsoleerd |
| Perceeloppervlakte | 202 m² |
| Woonoppervlakte | 170,1 m² |
| Inhoud | 696 m³ |
| Oppervlakte overige inpandige ruimten | 10,7 m² |
| Aantal bouwlagen | 3 |
| Aantal kamers | 7 (waarvan 5 slaapkamers) |
| Aantal badkamers | 2 (en 2 aparte toiletten) |
| Ligging | Aan rustige weg Aan vaarwater Aan water Dichtbij openbaar vervoer In woonwijk Nabij school Nabij snelweg Vrij uitzicht |
| Type | Voortuin |
| Oriëntering | Zuidoost |
| Staat | Goed onderhouden |
| Tuin 2 - Type | Achtertuin |
| Tuin 2 - Hoofdtuin | Ja |
| Tuin 2 - Oriëntering | Zuiden |
| Tuin 2 - Staat | Goed onderhouden |
| Energielabel | A+++ |
| Aantal parkeerplaatsen | 2 |
| Warm water | Elektrische boiler |
| Verwarmingssysteem | Vloerverwarming Warmtepomp Warmterecuperatiesysteem |
| Ventilatie methode | Balansventilatie |
| Keukenvoorzieningen | Inbouwapparatuur Kookeiland |
| Badkamervoorzieningen Badkamer 1 | Dubbele wastafel Inloopdouche Vloerverwarming |
| Badkamervoorzieningen Badkamer 2 | Ligbad Toilet Wastafelmeubel |
| Heeft kabel-tv | Ja |
| Glasvezelaansluiting aanwezig | Ja |
| Tuin aanwezig | Ja |
| Telefoonaansluiting aanwezig | Ja |
| Beschikt over een internetverbinding | Ja |
| Heeft schuur/berging | Ja |
| Heeft een schuifpui | Ja |
| Heeft zonnepanelen | Ja |
| Kadastrale aanduiding | Oegstgeest E 3452 |
| Perceeloppervlakte | 202 m² |
| Omvang | Geheel perceel |
| Eigendomsituatie | Eigen grond |