Met een eigen account kun je panden volgen, opslaan als favoriet, je zoekprofiel opslaan en jouw eigen notities bij een huis maken.
Algemeen
Multifunctioneel en Ruimtelijk Wonen/Werken: Van 't Hoffstraat 9 & Kapteynstraat 39A
Deel 1: Van 't Hoffstraat 9 (Ca. 64 m²) – De Ruimte Die Met Je Meedenkt
Zoekt u een plek waar wonen, werken en ondernemen samenkomen? De Van 't Hoffstraat 9 is een ca. 64 m² grote bedrijfsruimte met de bestemming 'Gemengd 2'.
Dit betekent dat u hier alle kanten op kunt:
1. Detailhandel/Winkelfunctie:... Meer informatie
Deel 1: Van 't Hoffstraat 9 (Ca. 64 m²) – De Ruimte Die Met Je Meedenkt
Zoekt u een plek waar wonen, werken en ondernemen samenkomen? De Van 't Hoffstraat 9 is een ca. 64 m² grote bedrijfsruimte met de bestemming 'Gemengd 2'.
Dit betekent dat u hier alle kanten op kunt:
1. Detailhandel/Winkelfunctie:... Meer informatie
-
Kenmerken
Alle kenmerken Type object Woonhuis, eengezinswoning, eind woning Bouwperiode 1936 Status Verkocht Aangeboden sinds Woensdag 26 november 2025 -
Locatie
Kenmerken
| Overdracht | |
|---|---|
| Referentienummer | 00289 |
| Vraagprijs | € 495.000,- k.k. |
| Inrichting | Niet gestoffeerd |
| Inrichting | Niet gemeubileerd |
| Status | Verkocht |
| Aanvaarding | In overleg |
| Aangeboden sinds | Woensdag 26 november 2025 |
| Laatste wijziging | Zaterdag 27 december 2025 |
| Bouw | |
|---|---|
| Type object | Woonhuis, eengezinswoning, eind woning |
| Soort bouw | Bestaande bouw |
| Bouwperiode | 1936 |
| Keurmerken | Bouwkundige keuring |
| Isolatievormen | Gedeeltelijk dubbel glas |
| Oppervlaktes en inhoud | |
|---|---|
| Perceeloppervlakte | 83 m² |
| Woonoppervlakte | 143 m² |
| Inhoud | 526 m³ |
| Oppervlakte overige inpandige ruimten | 4,76 m² |
| Indeling | |
|---|---|
| Aantal bouwlagen | 3 |
| Aantal kamers | 3 (waarvan 2 slaapkamers) |
| Aantal badkamers | 1 |
| Locatie | |
|---|---|
| Ligging | Dichtbij openbaar vervoer, In woonwijk, Nabij school, Nabij snelweg |
| CV ketel | |
|---|---|
| CV ketel | Vaillant / Ecotec plus 24-28 |
| Warmtebron | Gas |
| Bouwjaar | 2014 |
| Combiketel | Ja |
| Eigendom | Eigendom |
| Uitrusting | |
|---|---|
| Warm water | CV-ketel |
| Verwarmingssysteem | Centrale verwarming |
| Ventilatie methode | Natuurlijke ventilatie |
| Badkamervoorzieningen | Douche, Toilet, Wastafel |
| Heeft kabel-tv | Ja |
| Telefoonaansluiting aanwezig | Ja |
| Beschikt over een internetverbinding | Ja |
| Kadastrale gegevens | |
|---|---|
| Kadastrale aanduiding | Leiden M 7730 |
| Perceeloppervlakte | 83 m² |
| Omvang | Geheel perceel |
| Eigendomsituatie | Eigen grond |
Beschrijving
Multifunctioneel en Ruimtelijk Wonen/Werken: Van 't Hoffstraat 9 & Kapteynstraat 39A
Deel 1: Van 't Hoffstraat 9 (Ca. 64 m²) – De Ruimte Die Met Je Meedenkt
Zoekt u een plek waar wonen, werken en ondernemen samenkomen? De Van 't Hoffstraat 9 is een ca. 64 m² grote bedrijfsruimte met de bestemming 'Gemengd 2'.
Dit betekent dat u hier alle kanten op kunt:
1. Detailhandel/Winkelfunctie: Ideaal voor een leuke boetiek, speciaalzaak of galerie.
2. Dienstverlening: Perfect voor een kapper, fysiotherapeut of kantoor aan huis.
3. Woonruimte: Na verbouwing is dit de perfecte, ruime begane grondwoning, volledig naar eigen inzicht in te delen.
De ruimte is nu nog een blanco canvas; u bepaalt zelf de indeling en de afwerking. Creëer de ideale werkplek of uw droomloft op de begane grond!
________________________________________
Deel 2: Kapteynstraat 39A (Ca. 80 m²) – Een Lichte Bovenwoning met Potentie
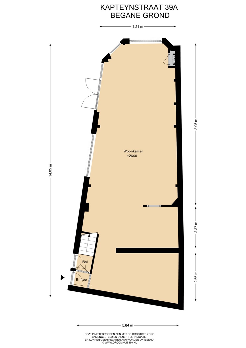
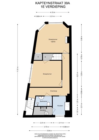
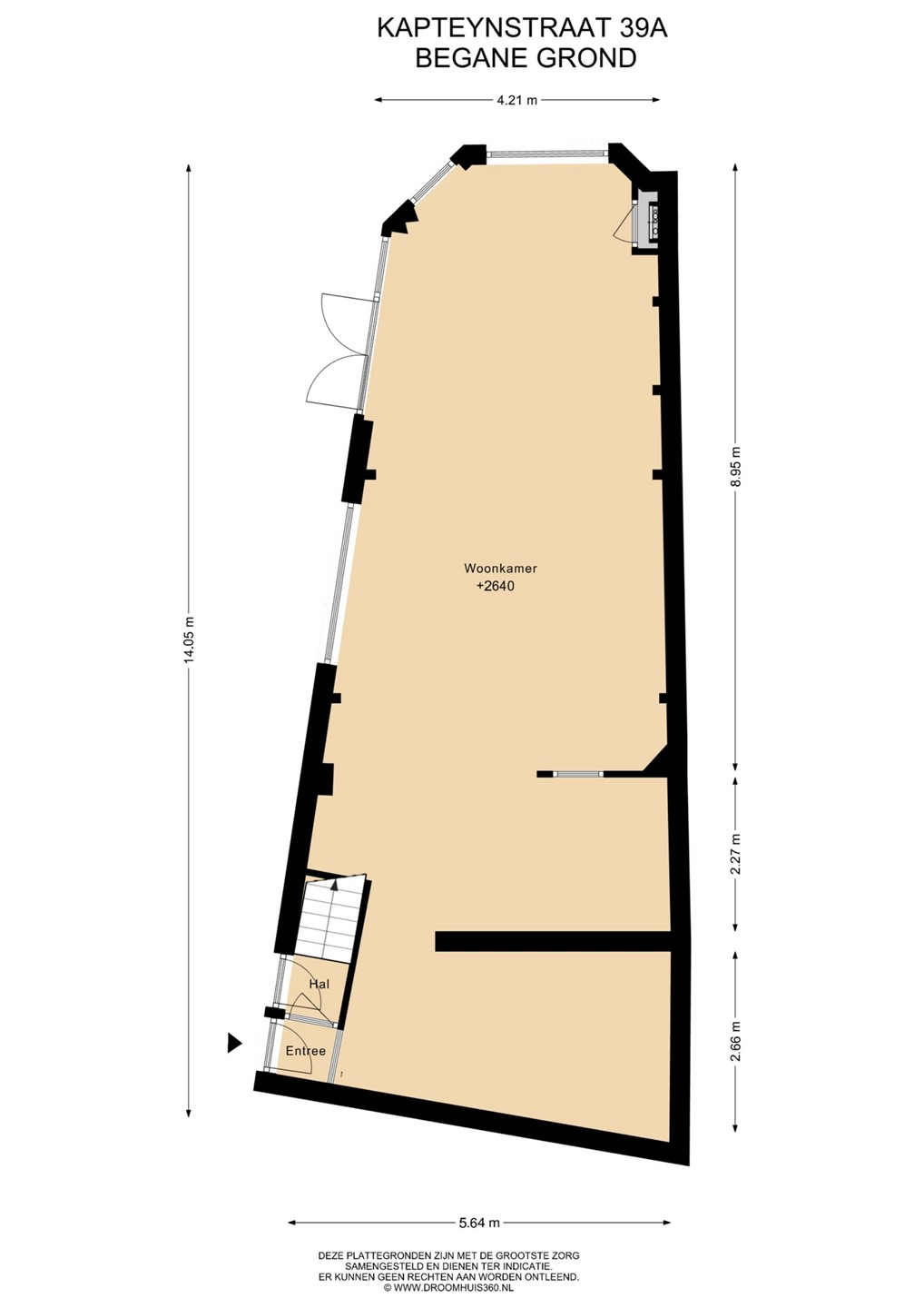
Direct om de hoek, op de Kapteynstraat 39A, vindt u deze lichte bovenwoning van ca. 80 m². Dit is een heerlijke, ruime woning met een perfecte basisindeling:
1. Een comfortabele woonkamer die uitnodigt tot gezellige avonden.
2. Een praktische keuken.
3. Twee volwaardige slaapkamers.
4. Een nette badkamer.
Let op: Dit pand staat te popelen om door u onder handen te worden genomen! De woning heeft 'een beetje liefde nodig', wat betekent dat u de kans krijgt om de afwerking en de inrichting helemaal naar uw eigen smaak en wensen te bepalen. Van de vloeren tot de kleuren op de muur: maak hier uw droomhuis van!
________________________________________
De Combinatie: Een Slimme Investering
Het samenvoegen van deze twee objecten biedt unieke kansen:
1. Wonen en Werken Gescheiden: Woon comfortabel in de Kapteynstraat en run uw bedrijf in de Van 't Hoffstraat.
2. Verhuurpotentie: Verhuur één van de objecten als investering.
3. Toekomstbestendig: Een multifunctioneel bezit in een gewilde wijk.
________________________________________
De Professorenwijk: Wonen met een Gouden Randje
De Professorenwijk is een van de meest statige en geliefde wijken van Leiden. Deze wijk is rond 1934 aangelegd, terwijl de aangrenzende Burgemeesterswijk dateert uit rond 1906.
1. Naam en Nomenclatuur: Veel straten zijn vernoemd naar beroemde hoogleraren en wetenschappers van de Universiteit Leiden. Dit weerspiegelt de diepe band tussen de stad en haar universiteit.
2. Architectuur en Sfeer: De wijk staat bekend om zijn karakteristieke architectuur uit het begin van de 20e eeuw, met invloeden van Jugendstil en de Amsterdamse School. Denk aan sfeervolle herenhuizen, beneden- en bovenwoningen met veel details en erkers. De wijk straalt rust, groen en aanzien uit.
3. Beschermd Stadsgezicht: Als onderdeel van de Zuidelijke Schil is de wijk een beschermd stadsgezicht, waardoor de unieke uitstraling en architectonische waarde behouden blijven.
________________________________________
De Van 't Hoffstraat: Vernoemd naar een Nobelprijswinnaar
De Van 't Hoffstraat is vernoemd naar Jacobus Henricus van 't Hoff, een pionier in de Nederlandse wetenschap.
1. De Eerste Nobelprijs: Van 't Hoff was in 1901 de allereerste Nederlander die een Nobelprijs won, voor Scheikunde.
2. Zijn Werk: Hij legde de basis voor de fysische chemie met zijn onderzoek naar chemische dynamica en osmotische druk.
3. De Band met Leiden: Hoewel hij veelal in Amsterdam en Berlijn werkte, studeerde hij een klein jaar in Leiden. Zijn naam is in de Professorenwijk vereeuwigd als eerbetoon aan zijn impact.
Kortom: wonen in de Van ’t Hoffstraat betekent wonen in een prachtige, historische wijk, vernoemd naar een man die de Nederlandse wetenschap wereldwijd op de kaart heeft gezet!
Wacht niet te lang – objecten met deze flexibiliteit zijn zeldzaam!
Deel 1: Van 't Hoffstraat 9 (Ca. 64 m²) – De Ruimte Die Met Je Meedenkt
Zoekt u een plek waar wonen, werken en ondernemen samenkomen? De Van 't Hoffstraat 9 is een ca. 64 m² grote bedrijfsruimte met de bestemming 'Gemengd 2'.
Dit betekent dat u hier alle kanten op kunt:
1. Detailhandel/Winkelfunctie: Ideaal voor een leuke boetiek, speciaalzaak of galerie.
2. Dienstverlening: Perfect voor een kapper, fysiotherapeut of kantoor aan huis.
3. Woonruimte: Na verbouwing is dit de perfecte, ruime begane grondwoning, volledig naar eigen inzicht in te delen.
De ruimte is nu nog een blanco canvas; u bepaalt zelf de indeling en de afwerking. Creëer de ideale werkplek of uw droomloft op de begane grond!
________________________________________
Deel 2: Kapteynstraat 39A (Ca. 80 m²) – Een Lichte Bovenwoning met Potentie
Direct om de hoek, op de Kapteynstraat 39A, vindt u deze lichte bovenwoning van ca. 80 m². Dit is een heerlijke, ruime woning met een perfecte basisindeling:
1. Een comfortabele woonkamer die uitnodigt tot gezellige avonden.
2. Een praktische keuken.
3. Twee volwaardige slaapkamers.
4. Een nette badkamer.
Let op: Dit pand staat te popelen om door u onder handen te worden genomen! De woning heeft 'een beetje liefde nodig', wat betekent dat u de kans krijgt om de afwerking en de inrichting helemaal naar uw eigen smaak en wensen te bepalen. Van de vloeren tot de kleuren op de muur: maak hier uw droomhuis van!
________________________________________
De Combinatie: Een Slimme Investering
Het samenvoegen van deze twee objecten biedt unieke kansen:
1. Wonen en Werken Gescheiden: Woon comfortabel in de Kapteynstraat en run uw bedrijf in de Van 't Hoffstraat.
2. Verhuurpotentie: Verhuur één van de objecten als investering.
3. Toekomstbestendig: Een multifunctioneel bezit in een gewilde wijk.
________________________________________
De Professorenwijk: Wonen met een Gouden Randje
De Professorenwijk is een van de meest statige en geliefde wijken van Leiden. Deze wijk is rond 1934 aangelegd, terwijl de aangrenzende Burgemeesterswijk dateert uit rond 1906.
1. Naam en Nomenclatuur: Veel straten zijn vernoemd naar beroemde hoogleraren en wetenschappers van de Universiteit Leiden. Dit weerspiegelt de diepe band tussen de stad en haar universiteit.
2. Architectuur en Sfeer: De wijk staat bekend om zijn karakteristieke architectuur uit het begin van de 20e eeuw, met invloeden van Jugendstil en de Amsterdamse School. Denk aan sfeervolle herenhuizen, beneden- en bovenwoningen met veel details en erkers. De wijk straalt rust, groen en aanzien uit.
3. Beschermd Stadsgezicht: Als onderdeel van de Zuidelijke Schil is de wijk een beschermd stadsgezicht, waardoor de unieke uitstraling en architectonische waarde behouden blijven.
________________________________________
De Van 't Hoffstraat: Vernoemd naar een Nobelprijswinnaar
De Van 't Hoffstraat is vernoemd naar Jacobus Henricus van 't Hoff, een pionier in de Nederlandse wetenschap.
1. De Eerste Nobelprijs: Van 't Hoff was in 1901 de allereerste Nederlander die een Nobelprijs won, voor Scheikunde.
2. Zijn Werk: Hij legde de basis voor de fysische chemie met zijn onderzoek naar chemische dynamica en osmotische druk.
3. De Band met Leiden: Hoewel hij veelal in Amsterdam en Berlijn werkte, studeerde hij een klein jaar in Leiden. Zijn naam is in de Professorenwijk vereeuwigd als eerbetoon aan zijn impact.
Kortom: wonen in de Van ’t Hoffstraat betekent wonen in een prachtige, historische wijk, vernoemd naar een man die de Nederlandse wetenschap wereldwijd op de kaart heeft gezet!
Wacht niet te lang – objecten met deze flexibiliteit zijn zeldzaam!