Met een eigen account kun je panden volgen, opslaan als favoriet, je zoekprofiel opslaan en jouw eigen notities bij een huis maken.
Algemeen
Charmante studio in het hart van Leiden!
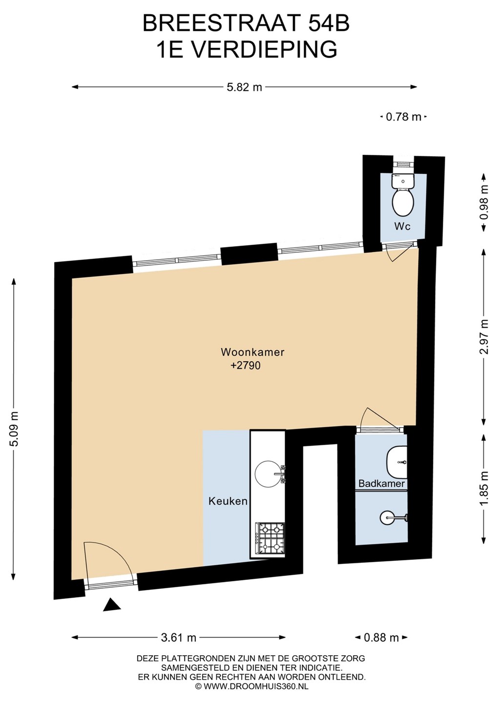
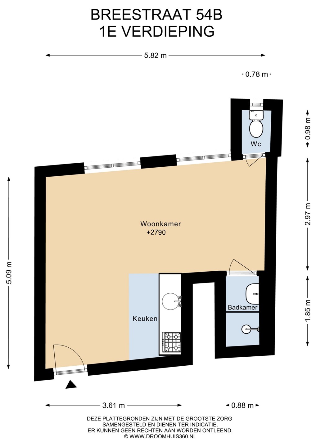
Deze lichte studio van circa 28 m² ligt op de eerste verdieping van een karakteristiek pand aan de Breestraat, midden in het bruisende centrum van Leiden. De studio beschikt over een lichte woon-/slaapkamer, een eenvoudige keuken, een badkamer met wastafel en inloopdouche en een separaat toilet.
De locatie is ideaal voor wie alles op loopafstand wi... Meer informatie
Deze lichte studio van circa 28 m² ligt op de eerste verdieping van een karakteristiek pand aan de Breestraat, midden in het bruisende centrum van Leiden. De studio beschikt over een lichte woon-/slaapkamer, een eenvoudige keuken, een badkamer met wastafel en inloopdouche en een separaat toilet.
De locatie is ideaal voor wie alles op loopafstand wi... Meer informatie
-
Kenmerken
Alle kenmerken Type object Appartement, bovenwoning Bouwperiode 1750 Status Verkocht onder voorbehoud Aangeboden sinds Woensdag 15 oktober 2025 -
Locatie
Kenmerken
| Overdracht | |
|---|---|
| Referentienummer | 00294 |
| Vraagprijs | € 189.000,- k.k. |
| Servicekosten | € 43,47 |
| Inrichting | Niet gestoffeerd |
| Inrichting | Niet gemeubileerd |
| Status | Verkocht onder voorbehoud |
| Aanvaarding | In overleg |
| Aangeboden sinds | Woensdag 15 oktober 2025 |
| Laatste wijziging | Vrijdag 31 oktober 2025 |
| Bouw | |
|---|---|
| Type object | Appartement, bovenwoning |
| Woonlaag | 1e woonlaag |
| Soort bouw | Bestaande bouw |
| Bouwperiode | 1750 |
| Oppervlaktes en inhoud | |
|---|---|
| Woonoppervlakte | 27,7 m² |
| Inhoud | 113 m³ |
| Oppervlakte externe bergruimte | 0,45 m² |
| Indeling | |
|---|---|
| Aantal bouwlagen | 1 |
| Aantal kamers | 1 |
| Aantal badkamers | 1 (en 1 apart toilet) |
| Locatie | |
|---|---|
| Ligging | Dichtbij openbaar vervoer, In centrum, In woonwijk, Nabij school, Nabij snelweg, Nabij winkelcentrum |
| Energieverbruik | |
|---|---|
| Energielabel | D |
| CV ketel | |
|---|---|
| Warmtebron | Gas |
| Combiketel | Ja |
| Eigendom | Eigendom |
| Uitrusting | |
|---|---|
| Warm water | CV-ketel |
| Verwarmingssysteem | Centrale verwarming |
| Ventilatie methode | Natuurlijke ventilatie |
| Badkamervoorzieningen | Inloopdouche, Wastafel |
| Heeft kabel-tv | Ja |
| Telefoonaansluiting aanwezig | Ja |
| Beschikt over een internetverbinding | Ja |
| Vereniging van Eigenaren | |
|---|---|
| Ingeschreven bij de KvK | Ja |
| Periodieke bijdrage | Ja |
| Meer jaren onderhoudsplan | Ja |
| Opstal verzekering | Ja |
| Kadastrale gegevens | |
|---|---|
| Kadastrale aanduiding | Leiden G 2536 |
| Perceeloppervlakte | 166 m² |
| Omvang | Appartementsrecht of complex |
| Eigendomsituatie | Eigen grond |
Beschrijving
Charmante studio in het hart van Leiden!
Deze lichte studio van circa 28 m² ligt op de eerste verdieping van een karakteristiek pand aan de Breestraat, midden in het bruisende centrum van Leiden. De studio beschikt over een lichte woon-/slaapkamer, een eenvoudige keuken, een badkamer met wastafel en inloopdouche en een separaat toilet.
De locatie is ideaal voor wie alles op loopafstand wil hebben: gezellige cafés, restaurants, winkels en het historische stadscentrum liggen letterlijk om de hoek. Met het station en uitvalswegen in de nabijheid, is deze studio ook perfect geschikt voor studenten of starters die van stedelijk wonen houden.
Kenmerken:
• Woonoppervlakte: circa 28 m²
• Eerste verdieping
• Lichte woon-/slaapkamer
• Eenvoudige keuken
• Badkamer met wastafel en inloopdouche
• Separaat toilet
• Nieuwe actieve VVE (€ 43,47 per maand)
• GWE-verrekening op basis van verdeling eigendomsaandeel
• Gelegen in een rijksmonument in het centrum van Leiden
Deze lichte studio van circa 28 m² ligt op de eerste verdieping van een karakteristiek pand aan de Breestraat, midden in het bruisende centrum van Leiden. De studio beschikt over een lichte woon-/slaapkamer, een eenvoudige keuken, een badkamer met wastafel en inloopdouche en een separaat toilet.
De locatie is ideaal voor wie alles op loopafstand wil hebben: gezellige cafés, restaurants, winkels en het historische stadscentrum liggen letterlijk om de hoek. Met het station en uitvalswegen in de nabijheid, is deze studio ook perfect geschikt voor studenten of starters die van stedelijk wonen houden.
Kenmerken:
• Woonoppervlakte: circa 28 m²
• Eerste verdieping
• Lichte woon-/slaapkamer
• Eenvoudige keuken
• Badkamer met wastafel en inloopdouche
• Separaat toilet
• Nieuwe actieve VVE (€ 43,47 per maand)
• GWE-verrekening op basis van verdeling eigendomsaandeel
• Gelegen in een rijksmonument in het centrum van Leiden