Met een eigen account kun je panden volgen, opslaan als favoriet, je zoekprofiel opslaan en jouw eigen notities bij een huis maken.
Algemeen
Luxe Bovenwoning in Hartje Leiden – Hogewoerd 46 A-3
Wonen in het bruisende centrum van Leiden, met alle gemakken binnen handbereik? Deze prachtige bovenwoning van 54 m² aan de Hogewoerd biedt het comfort van een moderne afwerking gecombineerd met de charme van de historische binnenstad. Gevestigd in een karakteristiek rijksmonument, biedt dit appartement een unieke combinatie van luxe, stij... Meer informatie
Wonen in het bruisende centrum van Leiden, met alle gemakken binnen handbereik? Deze prachtige bovenwoning van 54 m² aan de Hogewoerd biedt het comfort van een moderne afwerking gecombineerd met de charme van de historische binnenstad. Gevestigd in een karakteristiek rijksmonument, biedt dit appartement een unieke combinatie van luxe, stij... Meer informatie
-
Kenmerken
Alle kenmerken Type object Appartement, bovenwoning Bouwperiode 1775 Status Nieuw in verkoop Aangeboden sinds Dinsdag 30 september 2025 -
Locatie
Kenmerken
Overdracht | |
---|---|
Referentienummer | 00267 |
Vraagprijs | € 385.000,- k.k. |
Servicekosten | € 176,80 |
Inrichting | Niet gestoffeerd |
Inrichting | Niet gemeubileerd |
Status | Nieuw in verkoop |
Aanvaarding | In overleg |
Aangeboden sinds | Dinsdag 30 september 2025 |
Bouw | |
---|---|
Type object | Appartement, bovenwoning |
Woonlaag | 2e woonlaag |
Soort bouw | Bestaande bouw |
Bouwperiode | 1775 |
Dakbedekking | Dakpannen |
Type dak | Samengesteld |
Isolatievormen | Volledig geïsoleerd |
Oppervlaktes en inhoud | |
---|---|
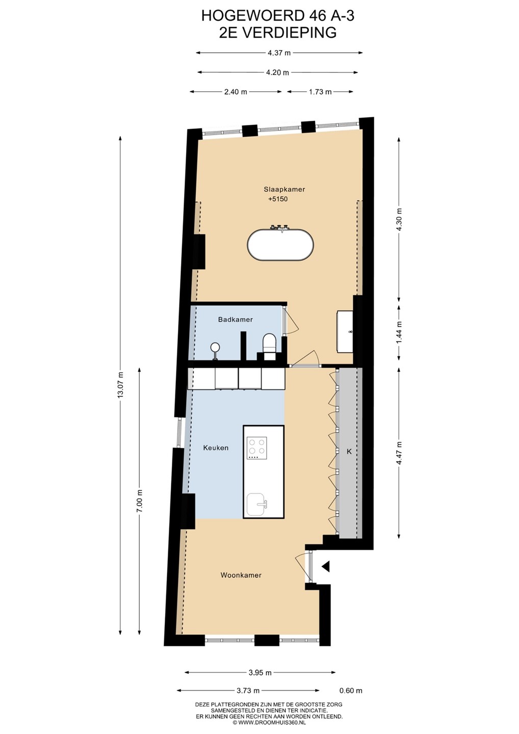
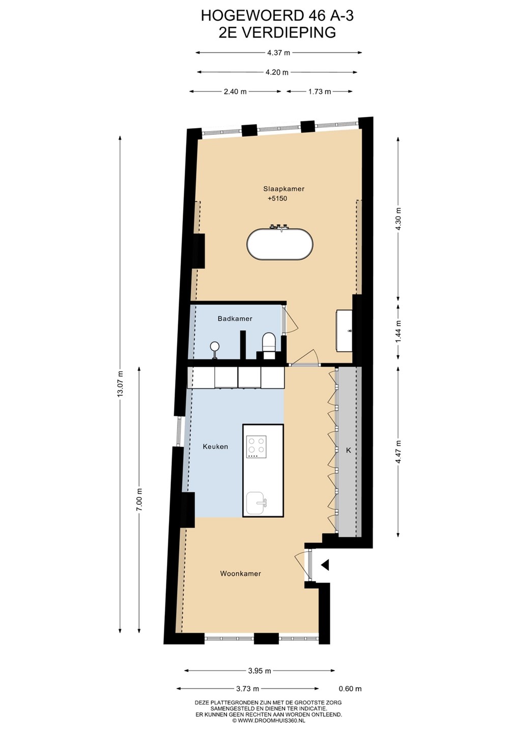
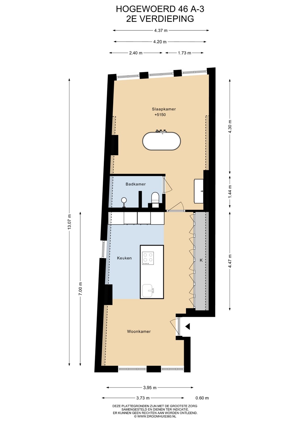
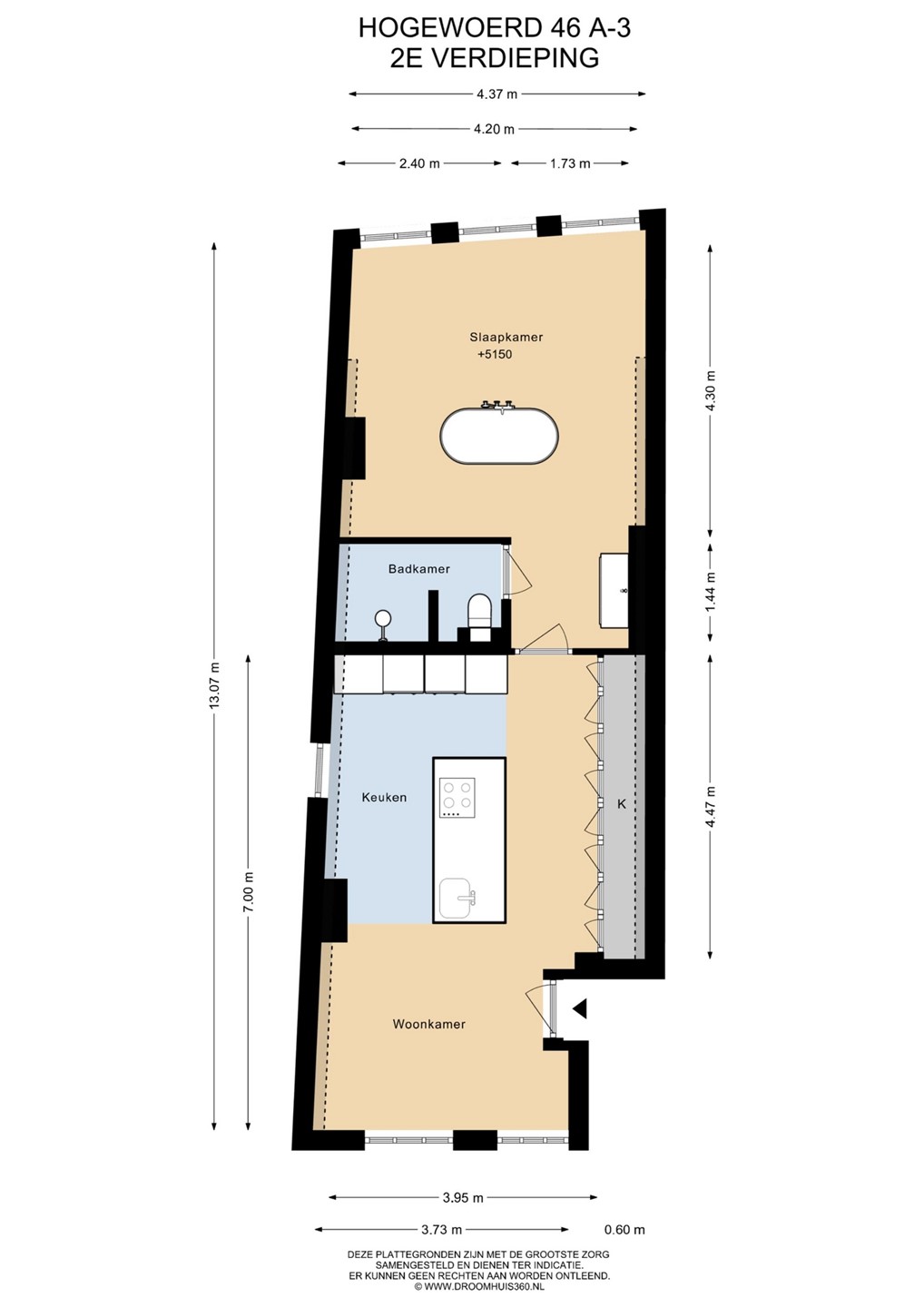
Woonoppervlakte | 54 m² |
Inhoud | 224 m³ |
Indeling | |
---|---|
Aantal bouwlagen | 1 |
Aantal kamers | 2 (waarvan 1 slaapkamer) |
Aantal badkamers | 1 |
Locatie | |
---|---|
Ligging | Dichtbij openbaar vervoer, In centrum, In woonwijk, Nabij school, Nabij snelweg |
Energieverbruik | |
---|---|
Energielabel | C |
CV ketel | |
---|---|
Warmtebron | Gas |
Bouwjaar | 2020 |
Combiketel | Ja |
Eigendom | Eigendom |
Uitrusting | |
---|---|
Warm water | CV-ketel |
Verwarmingssysteem | Centrale verwarming |
Ventilatie methode | Natuurlijke ventilatie |
Badkamervoorzieningen | Inloopdouche, Toilet |
Heeft kabel-tv | Ja |
Telefoonaansluiting aanwezig | Ja |
Beschikt over een internetverbinding | Ja |
Vereniging van Eigenaren | |
---|---|
Ingeschreven bij de KvK | Ja |
Periodieke bijdrage | Ja |
Meer jaren onderhoudsplan | Ja |
Opstal verzekering | Ja |
Kadastrale gegevens | |
---|---|
Kadastrale aanduiding | Leiden D 1866 |
Perceeloppervlakte | 177 m² |
Omvang | Appartementsrecht of complex |
Eigendomsituatie | Eigen grond |
Beschrijving
Luxe Bovenwoning in Hartje Leiden – Hogewoerd 46 A-3
Wonen in het bruisende centrum van Leiden, met alle gemakken binnen handbereik? Deze prachtige bovenwoning van 54 m² aan de Hogewoerd biedt het comfort van een moderne afwerking gecombineerd met de charme van de historische binnenstad. Gevestigd in een karakteristiek rijksmonument, biedt dit appartement een unieke combinatie van luxe, stijl en historie.
Indeling en Afwerking
Deze luxe bovenwoning is tot in de puntjes verzorgd en biedt een prettige indeling. Bij binnenkomst valt direct de lichte woonkamer op, met voldoende ruimte voor een comfortabele zithoek. De moderne open keuken is een echte eyecatcher: uitgerust met hoogwaardige inbouwapparatuur én een stijlvol kookeiland met bar, ideaal voor kookliefhebbers en gezelligheid. De keuken is afwerkt met materialen van topkwaliteit en biedt een "hotel-sjieke" uitstraling, perfect voor wie van het beste houdt.
De slaapkamer is ruim en verrassend ingedeeld, met een losstaand bad en wastafel in de kamer zelf – een luxe en speelse touch die het appartement een exclusief karakter geeft. De kapconstructie is volledig in het zicht gebracht, wat zorgt voor een indrukwekkende, loftachtige sfeer. Daarnaast beschikt de woning over een moderne badkamer met een inloopdouche en toilet. Alles is afgewerkt met oog voor detail, en dat merk je in de gebruikte materialen en de strakke afwerking.
Bijzonderheden
• Woonoppervlak: 54 m²
• Energielabel: C
• Hoogwaardige keuken met kookeiland, bar en inbouwapparatuur
• Aparte slaapkamer met losstaand bad en wastafel
• Luxe open badkamer met inloopdouche en toilet
• Kapconstructie volledig in het zicht gebracht
• Gelegen in een rijksmonument
• Gelegen op de bovenverdieping
Extra Ruimtelijk Effect: Mogelijkheid om Studio te Kopen Samen met A1 en/of A2
Voor een nog ruimer gevoel en extra mogelijkheden is het zelfs mogelijk om deze studio te kopen samen met A1 en/of A2. Dit biedt de ideale oplossing voor grotere gezinnen of bijvoorbeeld studerende kinderen, waarmee je een flexibelere indeling kunt creëren en meer ruimte hebt voor privacy en comfort.
VvE en Kosten
• Nieuwe, actieve Vereniging van Eigenaars (VvE): bijdrage van € 176,80 per maand
• GWL-verrekening: op basis van de verdeling van het eigendomsaandeel
• MJOP aanwezig (Meerjaren Onderhoudsplan): zorgt voor een goed overzicht en planning van het toekomstig onderhoud van het pand
Ligging: Levendaal-Oost – Centraal en Levendig
De woning ligt in de geliefde wijk Levendaal-Oost, een levendige buurt die deel uitmaakt van het historische centrum van Leiden. Hier woon je op loopafstand van gezellige cafés, restaurants, musea, boetieks en natuurlijk de bekende Leidse grachten. Ook voorzieningen zoals supermarkten, openbaar vervoer en het Centraal Station zijn snel bereikbaar. Bovendien fiets je in enkele minuten naar de universiteit, het Bio Science Park of het station.
Kortom: een waanzinnig appartement in een unieke locatie, waar luxe en historie samenkomen. Perfect voor wie op zoek is naar comfortabel stadsleven met karakter, de mogelijkheid om het woonoppervlak aan te passen aan eigen wensen én de zekerheid van een goed georganiseerde VvE.
Wonen in het bruisende centrum van Leiden, met alle gemakken binnen handbereik? Deze prachtige bovenwoning van 54 m² aan de Hogewoerd biedt het comfort van een moderne afwerking gecombineerd met de charme van de historische binnenstad. Gevestigd in een karakteristiek rijksmonument, biedt dit appartement een unieke combinatie van luxe, stijl en historie.
Indeling en Afwerking
Deze luxe bovenwoning is tot in de puntjes verzorgd en biedt een prettige indeling. Bij binnenkomst valt direct de lichte woonkamer op, met voldoende ruimte voor een comfortabele zithoek. De moderne open keuken is een echte eyecatcher: uitgerust met hoogwaardige inbouwapparatuur én een stijlvol kookeiland met bar, ideaal voor kookliefhebbers en gezelligheid. De keuken is afwerkt met materialen van topkwaliteit en biedt een "hotel-sjieke" uitstraling, perfect voor wie van het beste houdt.
De slaapkamer is ruim en verrassend ingedeeld, met een losstaand bad en wastafel in de kamer zelf – een luxe en speelse touch die het appartement een exclusief karakter geeft. De kapconstructie is volledig in het zicht gebracht, wat zorgt voor een indrukwekkende, loftachtige sfeer. Daarnaast beschikt de woning over een moderne badkamer met een inloopdouche en toilet. Alles is afgewerkt met oog voor detail, en dat merk je in de gebruikte materialen en de strakke afwerking.
Bijzonderheden
• Woonoppervlak: 54 m²
• Energielabel: C
• Hoogwaardige keuken met kookeiland, bar en inbouwapparatuur
• Aparte slaapkamer met losstaand bad en wastafel
• Luxe open badkamer met inloopdouche en toilet
• Kapconstructie volledig in het zicht gebracht
• Gelegen in een rijksmonument
• Gelegen op de bovenverdieping
Extra Ruimtelijk Effect: Mogelijkheid om Studio te Kopen Samen met A1 en/of A2
Voor een nog ruimer gevoel en extra mogelijkheden is het zelfs mogelijk om deze studio te kopen samen met A1 en/of A2. Dit biedt de ideale oplossing voor grotere gezinnen of bijvoorbeeld studerende kinderen, waarmee je een flexibelere indeling kunt creëren en meer ruimte hebt voor privacy en comfort.
VvE en Kosten
• Nieuwe, actieve Vereniging van Eigenaars (VvE): bijdrage van € 176,80 per maand
• GWL-verrekening: op basis van de verdeling van het eigendomsaandeel
• MJOP aanwezig (Meerjaren Onderhoudsplan): zorgt voor een goed overzicht en planning van het toekomstig onderhoud van het pand
Ligging: Levendaal-Oost – Centraal en Levendig
De woning ligt in de geliefde wijk Levendaal-Oost, een levendige buurt die deel uitmaakt van het historische centrum van Leiden. Hier woon je op loopafstand van gezellige cafés, restaurants, musea, boetieks en natuurlijk de bekende Leidse grachten. Ook voorzieningen zoals supermarkten, openbaar vervoer en het Centraal Station zijn snel bereikbaar. Bovendien fiets je in enkele minuten naar de universiteit, het Bio Science Park of het station.
Kortom: een waanzinnig appartement in een unieke locatie, waar luxe en historie samenkomen. Perfect voor wie op zoek is naar comfortabel stadsleven met karakter, de mogelijkheid om het woonoppervlak aan te passen aan eigen wensen én de zekerheid van een goed georganiseerde VvE.