Met een eigen account kun je panden volgen, opslaan als favoriet, je zoekprofiel opslaan en jouw eigen notities bij een huis maken.
Algemeen
(English version below)
Hooglandse Kerkgracht 40a – uniek wonen in hartje Leiden
Wonen op misschien wel het mooiste plekje van Leiden? Dit ruime en speels ingedeelde huis aan de Hooglandse Kerkgracht biedt het allemaal.
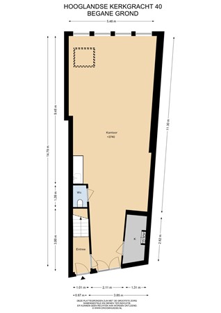
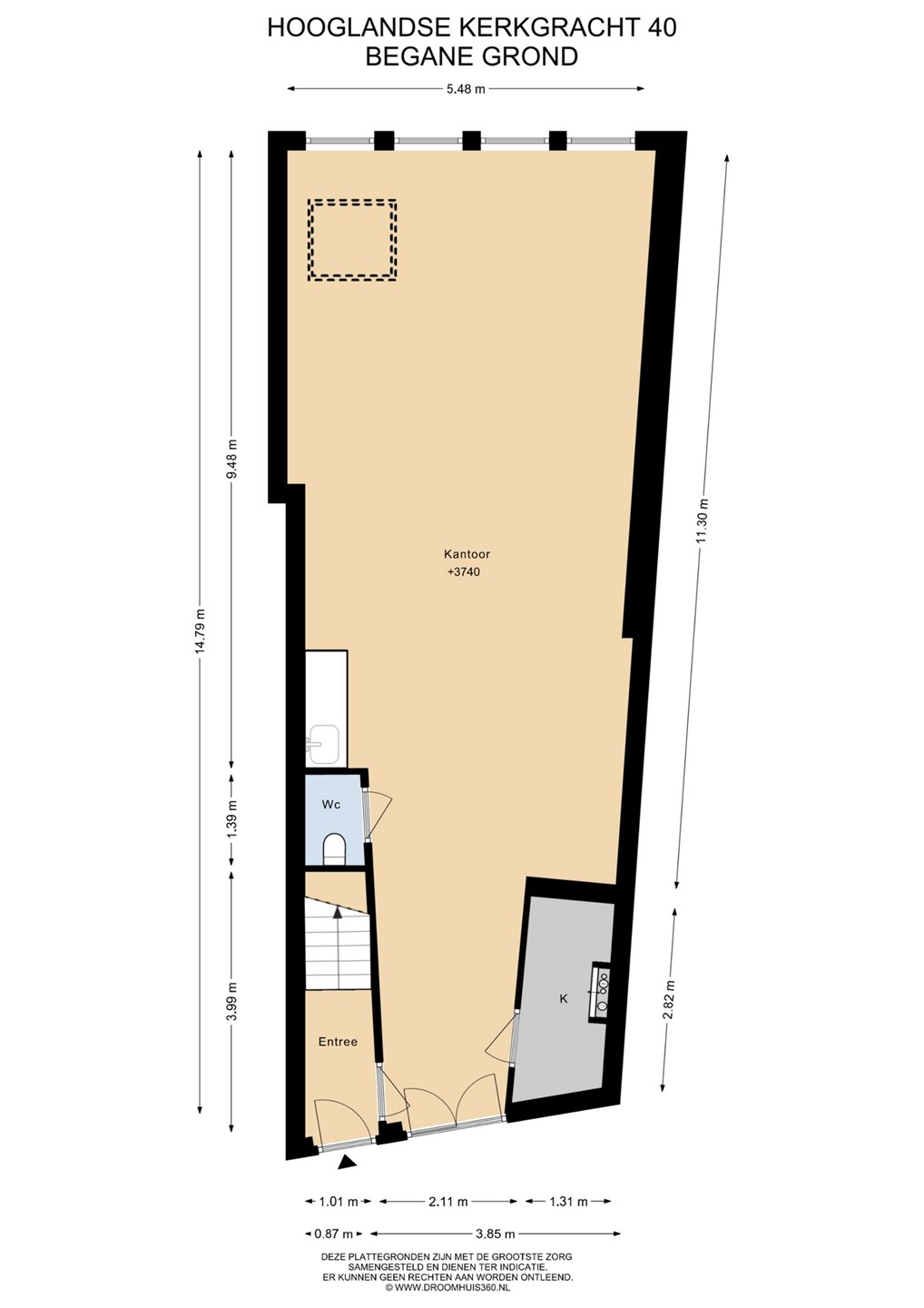
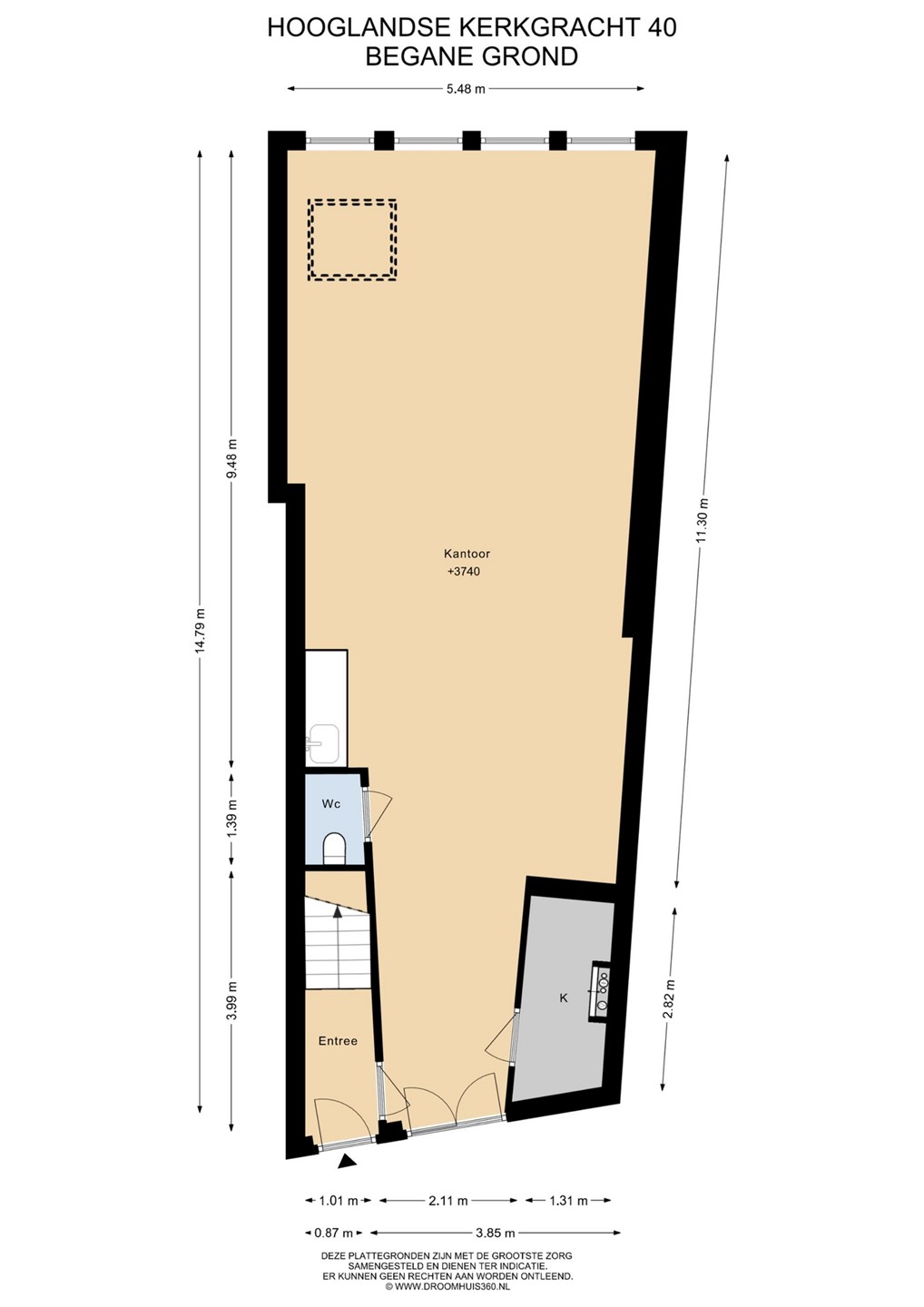
Op de begane grond bevindt zich een royale werkruimte/atelier, die ook eenvoudig te gebruiken is als zelfstandige woonruimte. Op de eerste verdieping vindt u een lichte... Meer informatie
Hooglandse Kerkgracht 40a – uniek wonen in hartje Leiden
Wonen op misschien wel het mooiste plekje van Leiden? Dit ruime en speels ingedeelde huis aan de Hooglandse Kerkgracht biedt het allemaal.
Op de begane grond bevindt zich een royale werkruimte/atelier, die ook eenvoudig te gebruiken is als zelfstandige woonruimte. Op de eerste verdieping vindt u een lichte... Meer informatie
-
Kenmerken
Alle kenmerken Type object Woonhuis, herenhuis, tussenwoning Bouwperiode 1850 Status Verkocht onder voorbehoud Aangeboden sinds Dinsdag 27 januari 2026 -
Locatie
Kenmerken
| Overdracht | |
|---|---|
| Referentienummer | 00324 |
| Vraagprijs | € 1.300.000,- k.k. |
| Inrichting | Niet gestoffeerd |
| Inrichting | Niet gemeubileerd |
| Status | Verkocht onder voorbehoud |
| Aanvaarding | In overleg |
| Aangeboden sinds | Dinsdag 27 januari 2026 |
| Laatste wijziging | Vrijdag 6 maart 2026 |
| Bouw | |
|---|---|
| Type object | Woonhuis, herenhuis, tussenwoning |
| Soort bouw | Bestaande bouw |
| Bouwperiode | 1850 |
| Keurmerken | Bouwkundige keuring |
| Isolatievormen | Gedeeltelijk dubbel glas |
| Oppervlaktes en inhoud | |
|---|---|
| Perceeloppervlakte | 93 m² |
| Woonoppervlakte | 229 m² |
| Inhoud | 893 m³ |
| Oppervlakte gebouwgebonden buitenruimte | 47,2 m² |
| Indeling | |
|---|---|
| Aantal bouwlagen | 4 |
| Aantal kamers | 4 (waarvan 2 slaapkamers) |
| Aantal badkamers | 1 (en 1 apart toilet) |
| Locatie | |
|---|---|
| Ligging | Dichtbij openbaar vervoer, In centrum, In woonwijk, Nabij school, Nabij snelweg |
| Energieverbruik | |
|---|---|
| Energielabel | F |
| CV ketel | |
|---|---|
| CV ketel | Remeha Quinta Pro |
| Warmtebron | Gas |
| Bouwjaar | 2006 |
| Combiketel | Ja |
| Eigendom | Eigendom |
| Uitrusting | |
|---|---|
| Warm water | CV-ketel |
| Verwarmingssysteem | Centrale verwarming |
| Ventilatie methode | Natuurlijke ventilatie |
| Badkamervoorzieningen | Dubbele wastafel, Inloopdouche, Ligbad, Toilet |
| Heeft een balkon | Ja |
| Heeft kabel-tv | Ja |
| Telefoonaansluiting aanwezig | Ja |
| Beschikt over een internetverbinding | Ja |
| Kadastrale gegevens | |
|---|---|
| Kadastrale aanduiding | Leiden I 2457 |
| Perceeloppervlakte | 93 m² |
| Omvang | Geheel perceel |
| Eigendomsituatie | Eigen grond |
Beschrijving
(English version below)
Hooglandse Kerkgracht 40a – uniek wonen in hartje Leiden
Wonen op misschien wel het mooiste plekje van Leiden? Dit ruime en speels ingedeelde huis aan de Hooglandse Kerkgracht biedt het allemaal.
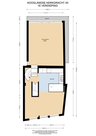
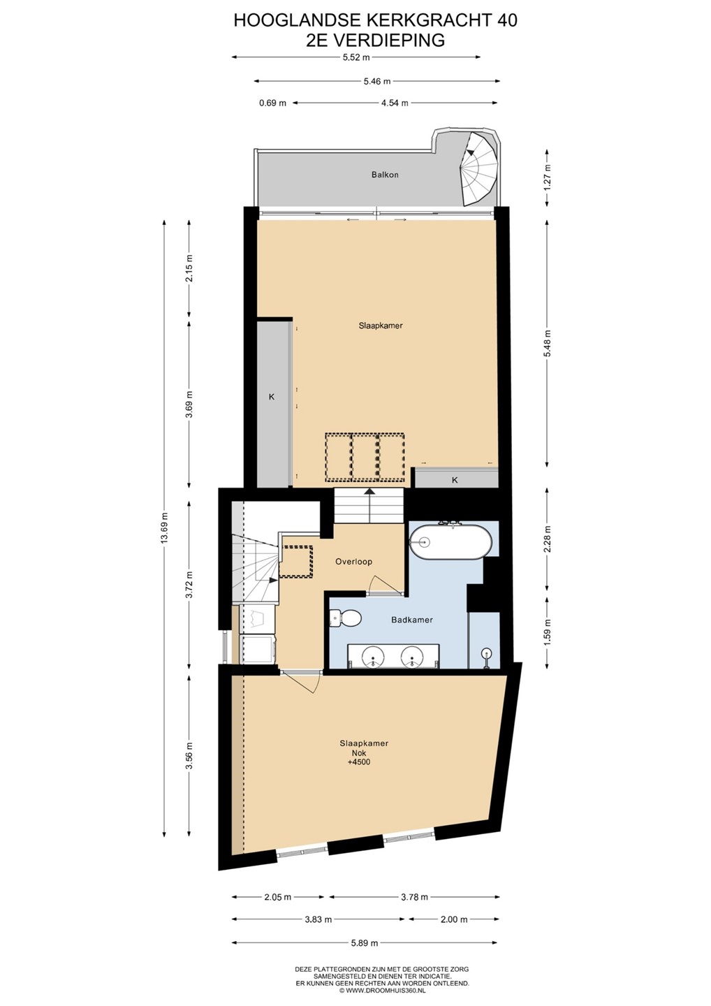
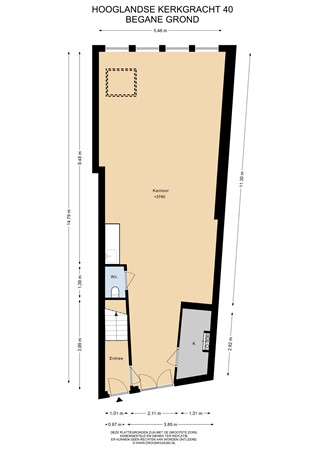
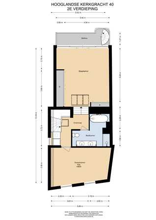
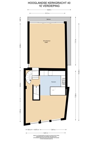
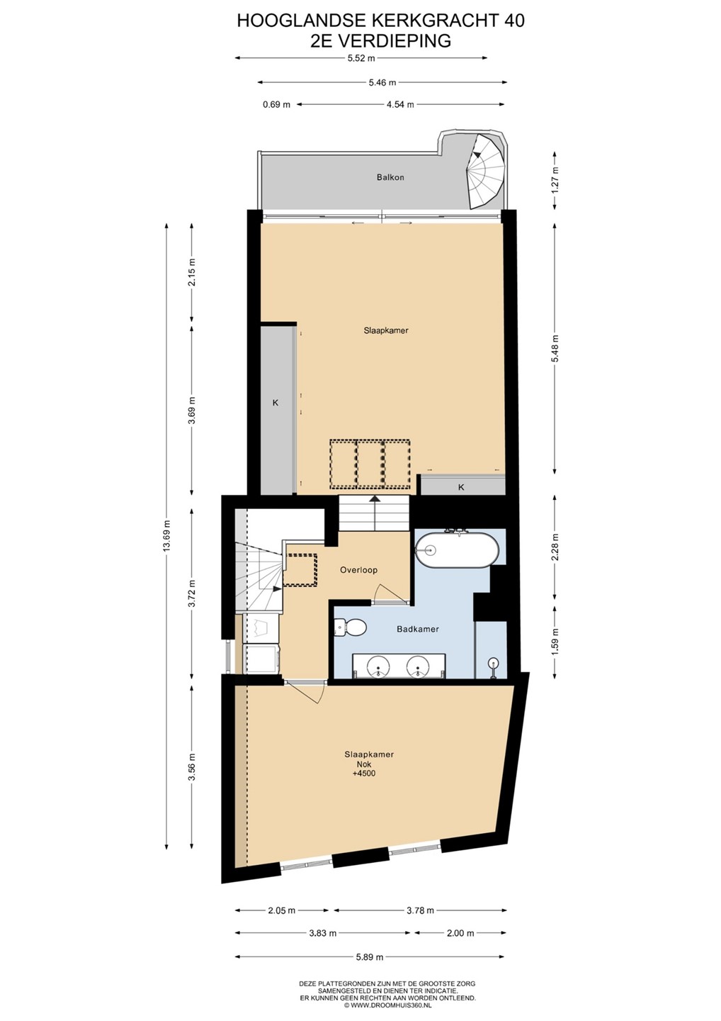
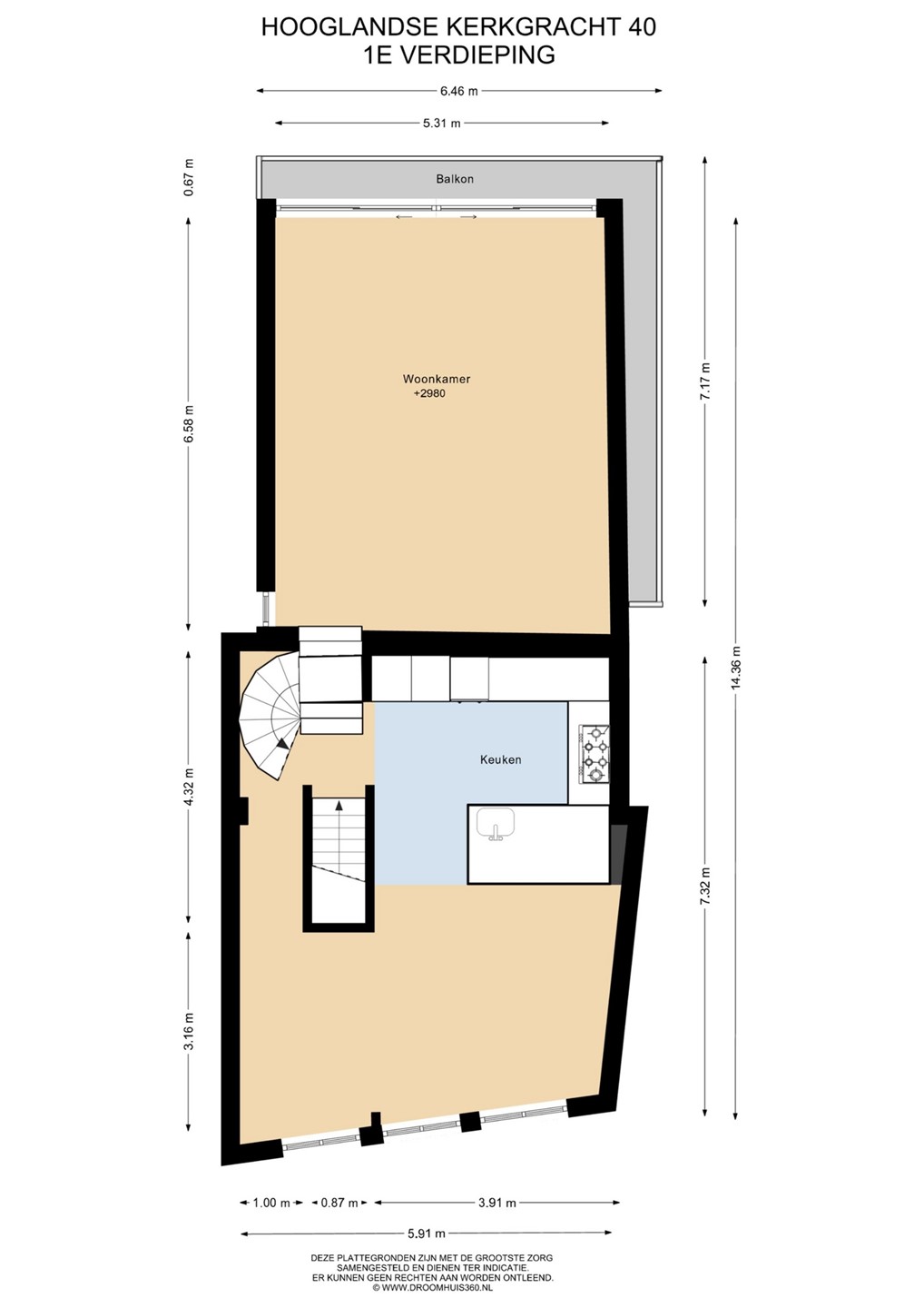
Op de begane grond bevindt zich een royale werkruimte/atelier, die ook eenvoudig te gebruiken is als zelfstandige woonruimte. Op de eerste verdieping vindt u een lichte, hoge woonkamer met grote ramen én een ruime leefkeuken – de perfecte plek om samen te koken, eten en genieten. Verder beschikt de woning over twee zeer royale slaapkamers en een indrukwekkend groot dakterras met vrij uitzicht op de Hooglandse Kerk.
De Hooglandse Kerkgracht is een autoluwe straat met de mogelijkheid tot laden en lossen. De locatie is uniek: kunstexposities tussen de populieren zorgen hier regelmatig voor een bijzondere sfeer.
Highlights:
• Speelse indeling met veel mogelijkheden
• Royale werkruimte/atelier of zelfstandige woonruimte op de begane grond
• Lichte, hoge woonkamer met grote ramen
• Grote leefkeuken – ideaal voor gezellig samen koken en eten
• Twee zeer royale slaapkamers
• Enorm dakterras met vrij uitzicht op de Hooglandse Kerk
• Gelegen in een autoluwe straat (met mogelijkheid tot laden/lossen)
• Volgens velen de mooiste woonplek van Leiden, met kunstexposities tussen de populieren
-----------------------------------------------------
Hooglandse Kerkgracht 40a – unique living in the heart of Leiden
Living at perhaps the most beautiful spot in Leiden? This spacious and playfully designed house on the Hooglandse Kerkgracht has it all.
On the ground floor you will find a generous workspace/studio, which can also easily be used as a self-contained apartment. The first floor features a bright, high-ceilinged living room with large windows and a spacious kitchen-diner – the perfect place to cook, dine and enjoy time together. The property also offers two very large bedrooms and an impressive roof terrace with unobstructed views of the iconic Hooglandse Kerk.
The Hooglandse Kerkgracht is a low-traffic street, with convenient access for loading and unloading. The location is truly special: art exhibitions among the poplars regularly add to the unique atmosphere of this beautiful setting.
Highlights:
• Playful layout with multiple possibilities
• Spacious workspace/studio or self-contained apartment on the ground floor
• Bright living room with high ceilings and large windows
• Large kitchen-diner – ideal for cooking and entertaining
• Two very spacious bedrooms
• Huge roof terrace with unobstructed views of the Hooglandse Kerk
• Situated in a low-traffic street (with loading/unloading access)
• Widely regarded as one of Leiden’s most beautiful places to live, with art exhibitions among the poplars
Hooglandse Kerkgracht 40a – uniek wonen in hartje Leiden
Wonen op misschien wel het mooiste plekje van Leiden? Dit ruime en speels ingedeelde huis aan de Hooglandse Kerkgracht biedt het allemaal.
Op de begane grond bevindt zich een royale werkruimte/atelier, die ook eenvoudig te gebruiken is als zelfstandige woonruimte. Op de eerste verdieping vindt u een lichte, hoge woonkamer met grote ramen én een ruime leefkeuken – de perfecte plek om samen te koken, eten en genieten. Verder beschikt de woning over twee zeer royale slaapkamers en een indrukwekkend groot dakterras met vrij uitzicht op de Hooglandse Kerk.
De Hooglandse Kerkgracht is een autoluwe straat met de mogelijkheid tot laden en lossen. De locatie is uniek: kunstexposities tussen de populieren zorgen hier regelmatig voor een bijzondere sfeer.
Highlights:
• Speelse indeling met veel mogelijkheden
• Royale werkruimte/atelier of zelfstandige woonruimte op de begane grond
• Lichte, hoge woonkamer met grote ramen
• Grote leefkeuken – ideaal voor gezellig samen koken en eten
• Twee zeer royale slaapkamers
• Enorm dakterras met vrij uitzicht op de Hooglandse Kerk
• Gelegen in een autoluwe straat (met mogelijkheid tot laden/lossen)
• Volgens velen de mooiste woonplek van Leiden, met kunstexposities tussen de populieren
-----------------------------------------------------
Hooglandse Kerkgracht 40a – unique living in the heart of Leiden
Living at perhaps the most beautiful spot in Leiden? This spacious and playfully designed house on the Hooglandse Kerkgracht has it all.
On the ground floor you will find a generous workspace/studio, which can also easily be used as a self-contained apartment. The first floor features a bright, high-ceilinged living room with large windows and a spacious kitchen-diner – the perfect place to cook, dine and enjoy time together. The property also offers two very large bedrooms and an impressive roof terrace with unobstructed views of the iconic Hooglandse Kerk.
The Hooglandse Kerkgracht is a low-traffic street, with convenient access for loading and unloading. The location is truly special: art exhibitions among the poplars regularly add to the unique atmosphere of this beautiful setting.
Highlights:
• Playful layout with multiple possibilities
• Spacious workspace/studio or self-contained apartment on the ground floor
• Bright living room with high ceilings and large windows
• Large kitchen-diner – ideal for cooking and entertaining
• Two very spacious bedrooms
• Huge roof terrace with unobstructed views of the Hooglandse Kerk
• Situated in a low-traffic street (with loading/unloading access)
• Widely regarded as one of Leiden’s most beautiful places to live, with art exhibitions among the poplars