Met een eigen account kun je panden volgen, opslaan als favoriet, je zoekprofiel opslaan en jouw eigen notities bij een huis maken.
Algemeen
Te koop: Lange Mare 56, Leiden – Rijksmonument met charme en comfort
Uniek rijksmonument in het hart van Leiden
Lange Mare 56 combineert historische charme met modern comfort. Met 2 tot 3 slaapkamers, 2 badkamers en een ruime leefkeuken biedt deze woning verrassend veel ruimte. Ideaal voor gezinnen, stellen of wie wonen en werken wil combineren.
Droom je van een woning vol karakter, in... Meer informatie
Uniek rijksmonument in het hart van Leiden
Lange Mare 56 combineert historische charme met modern comfort. Met 2 tot 3 slaapkamers, 2 badkamers en een ruime leefkeuken biedt deze woning verrassend veel ruimte. Ideaal voor gezinnen, stellen of wie wonen en werken wil combineren.
Droom je van een woning vol karakter, in... Meer informatie
-
Kenmerken
Alle kenmerken Type object Woonhuis, eengezinswoning, tussenwoning Bouwperiode 1750 Status Verkocht Aangeboden sinds Maandag 22 september 2025 -
Locatie
Kenmerken
| Overdracht | |
|---|---|
| Referentienummer | 00281 |
| Vraagprijs | € 550.000,- k.k. |
| Inrichting | Niet gestoffeerd |
| Inrichting | Niet gemeubileerd |
| Status | Verkocht |
| Aanvaarding | In overleg |
| Aangeboden sinds | Maandag 22 september 2025 |
| Laatste wijziging | Dinsdag 9 december 2025 |
| Bouw | |
|---|---|
| Type object | Woonhuis, eengezinswoning, tussenwoning |
| Soort bouw | Bestaande bouw |
| Bouwperiode | 1750 |
| Dakbedekking | Dakpannen |
| Type dak | Zadeldak |
| Keurmerken | Bouwkundige keuring |
| Isolatievormen | Grotendeels dubbel glas, Vloerisolatie |
| Oppervlaktes en inhoud | |
|---|---|
| Perceeloppervlakte | 51 m² |
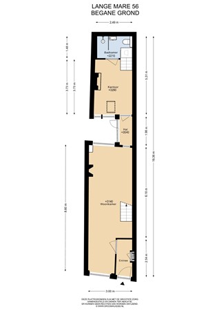
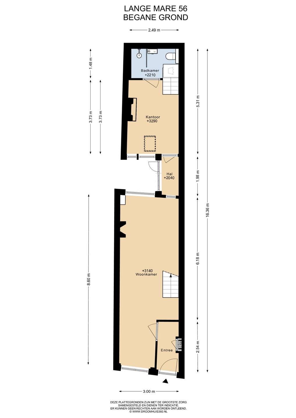
| Woonoppervlakte | 103 m² |
| Inhoud | 410 m³ |
| Indeling | |
|---|---|
| Aantal bouwlagen | 3 |
| Aantal kamers | 5 (waarvan 3 slaapkamers) |
| Aantal badkamers | 2 (en 1 apart toilet) |
| Locatie | |
|---|---|
| Ligging | Dichtbij openbaar vervoer, In centrum, In woonwijk, Nabij school, Nabij snelweg |
| Tuin | |
|---|---|
| Type | Open ruimte |
| Hoofdtuin | Ja |
| Staat | Normaal |
| Energieverbruik | |
|---|---|
| Energielabel | C |
| CV ketel | |
|---|---|
| CV ketel | Intergas |
| Warmtebron | Gas |
| Combiketel | Ja |
| Eigendom | Eigendom |
| Uitrusting | |
|---|---|
| Warm water | CV-ketel |
| Verwarmingssysteem | Centrale verwarming |
| Ventilatie methode | Mechanische ventilatie, Natuurlijke ventilatie |
| Keukenvoorzieningen | Inbouwapparatuur |
| Badkamervoorzieningen Badkamer 1 | Inloopdouche, Toilet, Wasmachineaansluiting, Wastafel |
| Badkamervoorzieningen Badkamer 2 | Inloopdouche, Wastafel |
| Heeft kabel-tv | Ja |
| Glasvezelaansluiting aanwezig | Ja |
| Tuin aanwezig | Ja |
| Telefoonaansluiting aanwezig | Ja |
| Beschikt over een internetverbinding | Ja |
| Heeft ventilatie | Ja |
| Kadastrale gegevens | |
|---|---|
| Kadastrale aanduiding | Leiden H 1110 |
| Perceeloppervlakte | 51 m² |
| Omvang | Geheel perceel |
| Eigendomsituatie | Eigen grond |
Beschrijving
Te koop: Lange Mare 56, Leiden – Rijksmonument met charme en comfort
Uniek rijksmonument in het hart van Leiden
Lange Mare 56 combineert historische charme met modern comfort. Met 2 tot 3 slaapkamers, 2 badkamers en een ruime leefkeuken biedt deze woning verrassend veel ruimte. Ideaal voor gezinnen, stellen of wie wonen en werken wil combineren.
Droom je van een woning vol karakter, in het hart van de historische stad Leiden? Dit bijzondere rijksmonument, bestaande uit een voorhuis en achterhuis, is met zorg gerenoveerd en smaakvol ingericht. Het pand biedt 103 m² aan woonruimte en combineert authentieke elementen met hedendaags wooncomfort.
Indeling
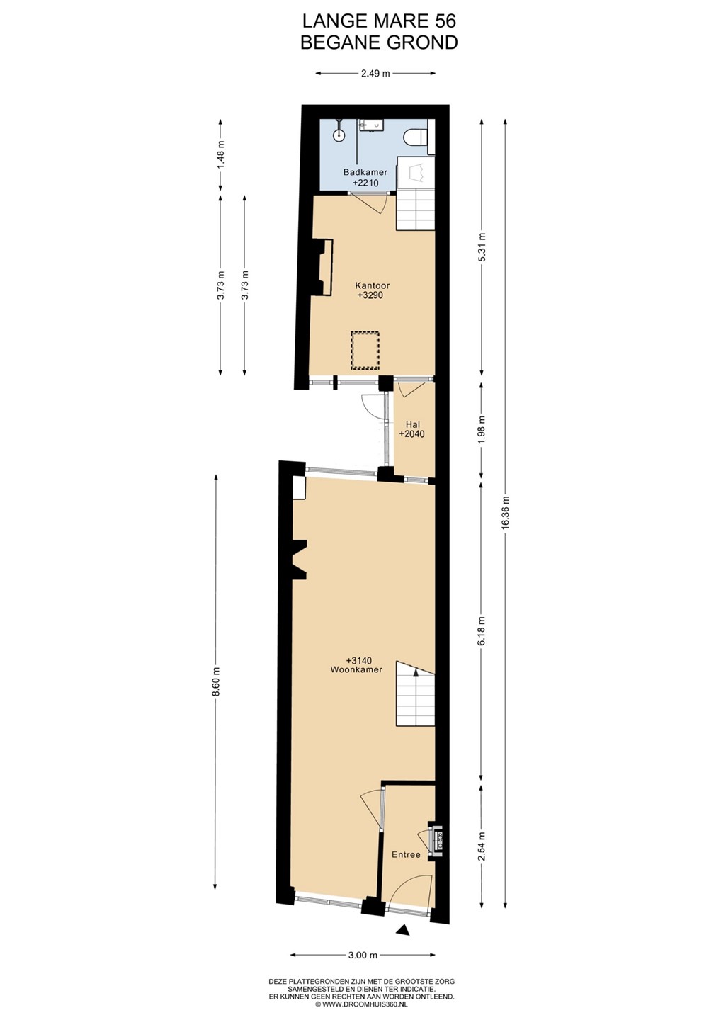
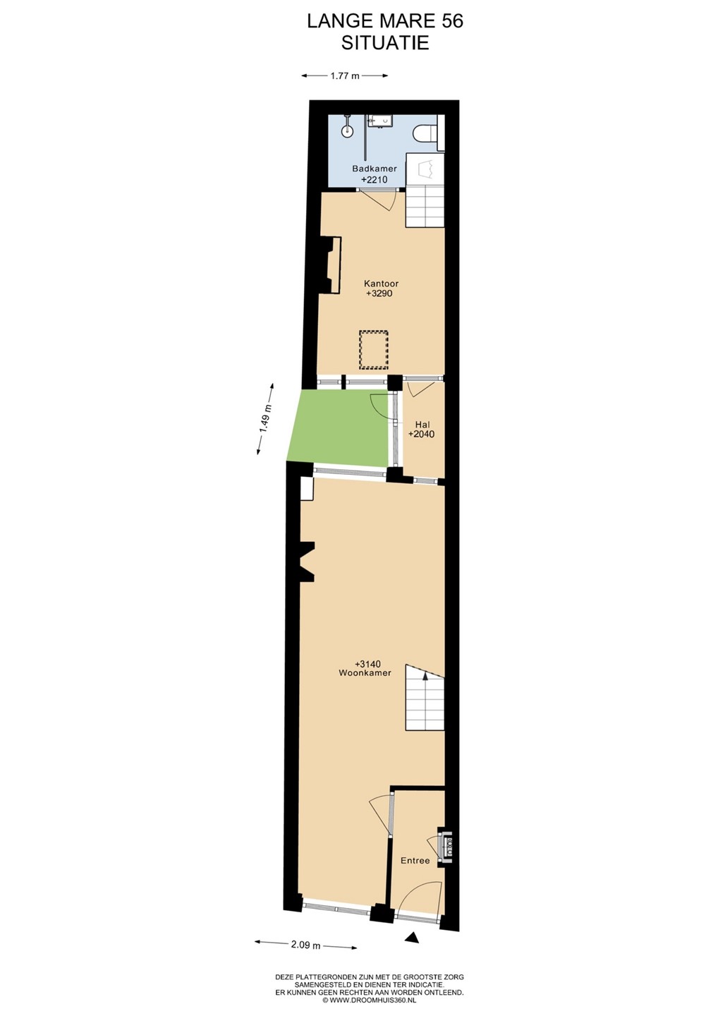
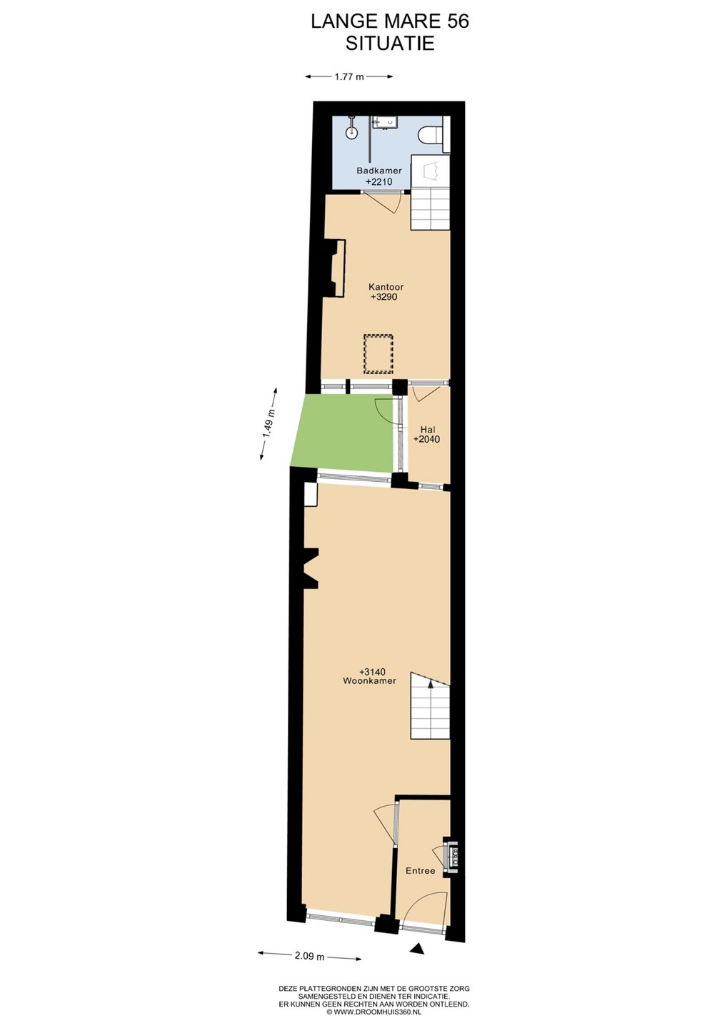
Met 2 tot 3 slaapkamers, 2 badkamers, een ruime leefkeuken met prachtig uitzicht en een gezellige woonkamer is deze woning ideaal voor kleine gezinnen, maar ook voor stellen die op zoek zijn naar extra ruimte. Dankzij de flexibele indeling leent het huis zich uitstekend voor bijvoorbeeld dubbele bewoning, een ouder kind, een thuiskantoor of een gastenverblijf. De begane grond is voorzien van vloerverwarming, wat zorgt voor extra comfort tijdens de koudere maanden. Daarnaast zijn er voorzieningen aanwezig om op de begane grond een (extra) keuken te realiseren.
Locatie & omgeving
De Lange Mare is een levendige straat waar je het authentieke Leidse stadsleven kunt ervaren. Het pand heeft een iconische klokgevel die het karakter van dit rijksmonument benadrukt. Vanuit de leefkeuken geniet je van een fraai uitzicht op de Lange Mare en de altijd fleurige bloemenwinkel. De straat zelf biedt een gezellige stadssfeer en ligt op steenworp afstand van het bruisende centrum van Leiden. Winkels, restaurants, musea, de Schouwburg en het openbaar vervoer bevinden zich op loopafstand. Daarnaast is parkeren met een vergunning goed mogelijk in de directe omgeving. Bovendien ben je snel op de uitvalswegen, waardoor de locatie ook ideaal is voor wie regelmatig reist.
Kenmerken
• Rijksmonument met historische allure
• 103 m² woonoppervlakte
• 2 tot 3 slaapkamers
• 2 badkamers
• Smaakvolle en moderne renovatie
• Vloerverwarming op de begane grond
• Voorzieningen voor een (extra) keuken op de begane grond
• Levendige en sfeervolle locatie
• Klokgevel met karakteristieke uitstraling
• Perfect voor dubbele bewoning, thuiswerken of een ouder kind
• Midden in het sfeervolle centrum van Leiden
• Bouwtechnische keuring aanwezig
Uniek rijksmonument in het hart van Leiden
Lange Mare 56 combineert historische charme met modern comfort. Met 2 tot 3 slaapkamers, 2 badkamers en een ruime leefkeuken biedt deze woning verrassend veel ruimte. Ideaal voor gezinnen, stellen of wie wonen en werken wil combineren.
Droom je van een woning vol karakter, in het hart van de historische stad Leiden? Dit bijzondere rijksmonument, bestaande uit een voorhuis en achterhuis, is met zorg gerenoveerd en smaakvol ingericht. Het pand biedt 103 m² aan woonruimte en combineert authentieke elementen met hedendaags wooncomfort.
Indeling
Met 2 tot 3 slaapkamers, 2 badkamers, een ruime leefkeuken met prachtig uitzicht en een gezellige woonkamer is deze woning ideaal voor kleine gezinnen, maar ook voor stellen die op zoek zijn naar extra ruimte. Dankzij de flexibele indeling leent het huis zich uitstekend voor bijvoorbeeld dubbele bewoning, een ouder kind, een thuiskantoor of een gastenverblijf. De begane grond is voorzien van vloerverwarming, wat zorgt voor extra comfort tijdens de koudere maanden. Daarnaast zijn er voorzieningen aanwezig om op de begane grond een (extra) keuken te realiseren.
Locatie & omgeving
De Lange Mare is een levendige straat waar je het authentieke Leidse stadsleven kunt ervaren. Het pand heeft een iconische klokgevel die het karakter van dit rijksmonument benadrukt. Vanuit de leefkeuken geniet je van een fraai uitzicht op de Lange Mare en de altijd fleurige bloemenwinkel. De straat zelf biedt een gezellige stadssfeer en ligt op steenworp afstand van het bruisende centrum van Leiden. Winkels, restaurants, musea, de Schouwburg en het openbaar vervoer bevinden zich op loopafstand. Daarnaast is parkeren met een vergunning goed mogelijk in de directe omgeving. Bovendien ben je snel op de uitvalswegen, waardoor de locatie ook ideaal is voor wie regelmatig reist.
Kenmerken
• Rijksmonument met historische allure
• 103 m² woonoppervlakte
• 2 tot 3 slaapkamers
• 2 badkamers
• Smaakvolle en moderne renovatie
• Vloerverwarming op de begane grond
• Voorzieningen voor een (extra) keuken op de begane grond
• Levendige en sfeervolle locatie
• Klokgevel met karakteristieke uitstraling
• Perfect voor dubbele bewoning, thuiswerken of een ouder kind
• Midden in het sfeervolle centrum van Leiden
• Bouwtechnische keuring aanwezig