Met een eigen account kun je panden volgen, opslaan als favoriet, je zoekprofiel opslaan en jouw eigen notities bij een huis maken.
Algemeen
Dit Rijksmonument van maar liefst 343 m² woonoppervlakte is dankzij twee aparte entrees en eigen nutsvoorzieningen multifunctioneel inzetbaar.
Denk hierbij aan diverse gebruiksmogelijkheden, zoals:
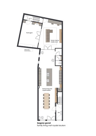
*een volledig woonhuis met bijvoorbeeld een royale woonkeuken op de begane grond, aangevuld met een bioscoop en gym en een appartement voor kinderen of gasten;
*een combinatie van wonen en werke... Meer informatie
Denk hierbij aan diverse gebruiksmogelijkheden, zoals:
*een volledig woonhuis met bijvoorbeeld een royale woonkeuken op de begane grond, aangevuld met een bioscoop en gym en een appartement voor kinderen of gasten;
*een combinatie van wonen en werke... Meer informatie
-
Kenmerken
Alle kenmerken Type object Woonhuis, grachtenpand, tussenwoning Bouwperiode 1750 Status Nieuw in verkoop Aangeboden sinds Woensdag 15 april 2026 -
Locatie
Kenmerken
| Overdracht | |
|---|---|
| Referentienummer | 00340 |
| Vraagprijs | € 1.750.000,- k.k. |
| Inrichting | Niet gestoffeerd |
| Inrichting | Niet gemeubileerd |
| Status | Nieuw in verkoop |
| Aanvaarding | In overleg |
| Aangeboden sinds | Woensdag 15 april 2026 |
| Bouw | |
|---|---|
| Type object | Woonhuis, grachtenpand, tussenwoning |
| Soort bouw | Bestaande bouw |
| Bouwperiode | 1750 |
| Dakbedekking | Dakpannen |
| Type dak | Zadeldak |
| Keurmerken | Bouwkundige keuring |
| Isolatievormen | Dakisolatie, Grotendeels dubbel glas, Vloerisolatie |
| Oppervlaktes en inhoud | |
|---|---|
| Perceeloppervlakte | 136 m² |
| Woonoppervlakte | 343,1 m² |
| Inhoud | 1.224 m³ |
| Oppervlakte overige inpandige ruimten | 2,4 m² |
| Oppervlakte gebouwgebonden buitenruimte | 83,2 m² |
| Indeling | |
|---|---|
| Aantal bouwlagen | 5 |
| Aantal kamers | 8 (waarvan 6 slaapkamers) |
| Aantal badkamers | 1 (en 2 aparte toiletten) |
| Locatie | |
|---|---|
| Ligging | Aan water, Dichtbij openbaar vervoer, In centrum, In woonwijk, Nabij school, Nabij snelweg |
| CV ketel | |
|---|---|
| Warmtebron | Gas |
| Bouwjaar | 2018 |
| Combiketel | Ja |
| Eigendom | Eigendom |
| Uitrusting | |
|---|---|
| Warm water | CV-ketel |
| Verwarmingssysteem | Centrale verwarming |
| Ventilatie methode | Mechanische ventilatie, Natuurlijke ventilatie |
| Badkamervoorzieningen | Douche, Dubbele wastafel, Ligbad, Toilet |
| Heeft kabel-tv | Ja |
| Glasvezelaansluiting aanwezig | Ja |
| Telefoonaansluiting aanwezig | Ja |
| Beschikt over een internetverbinding | Ja |
| Heeft een dakraam | Ja |
| Heeft een schuifpui | Ja |
| Heeft ventilatie | Ja |
| Kadastrale gegevens | |
|---|---|
| Kadastrale aanduiding | Leiden I 1114 |
| Perceeloppervlakte | 136 m² |
| Omvang | Geheel perceel |
| Eigendomsituatie | Eigen grond |
Beschrijving
Dit Rijksmonument van maar liefst 343 m² woonoppervlakte is dankzij twee aparte entrees en eigen nutsvoorzieningen multifunctioneel inzetbaar.
Denk hierbij aan diverse gebruiksmogelijkheden, zoals:
*een volledig woonhuis met bijvoorbeeld een royale woonkeuken op de begane grond, aangevuld met een bioscoop en gym en een appartement voor kinderen of gasten;
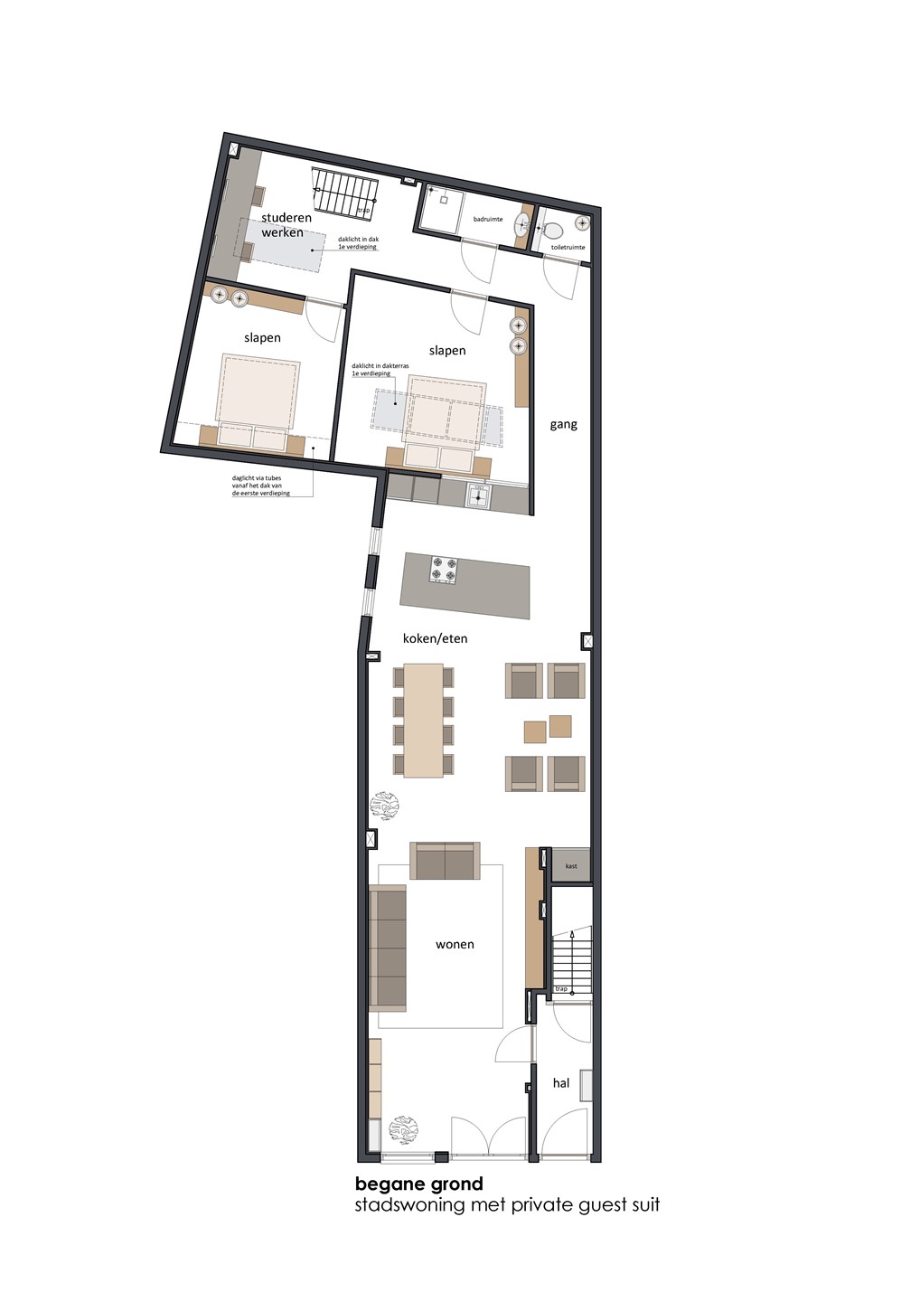
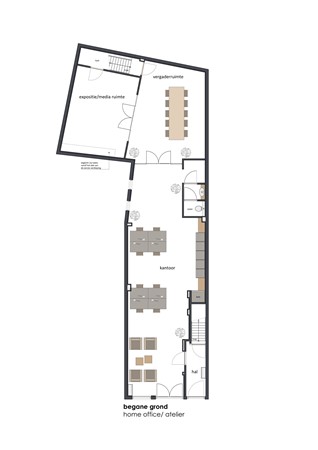
*een combinatie van wonen en werken, zoals een kantoor of praktijkruimte aan huis;
* een ruim woonhuis met een zelfstandig appartement voor kinderen, au pair of gasten;
*of een afzonderlijk appartement op de begane grond met daarboven een riante bovenwoning voor eigen bewoning en/of verhuur.
Om een goed beeld te geven van de indelingsmogelijkheden zijn diverse plattegronden toegevoegd.
Aan de Nieuwe Rijn bevindt zich dit verrassend ruime grachtenpand met een prachtig uitzicht over het water. Op loopafstand ligt alles wat het stadsleven aantrekkelijk maakt: winkels, de wekelijkse markt, gezellige terrassen, restaurants, musea en theaters.
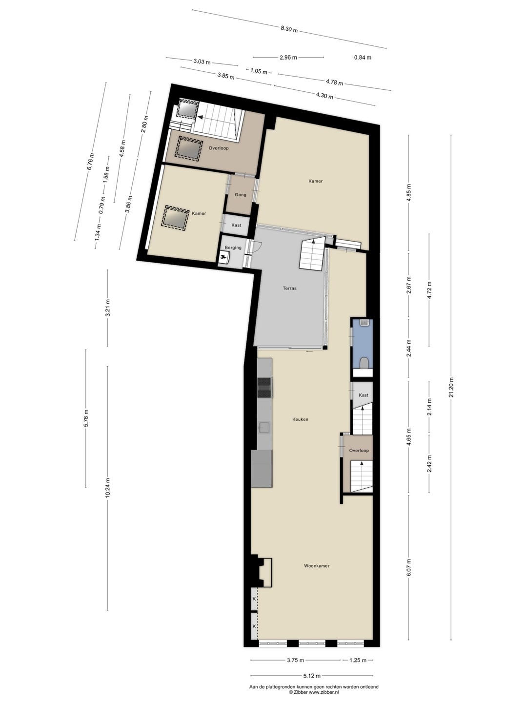
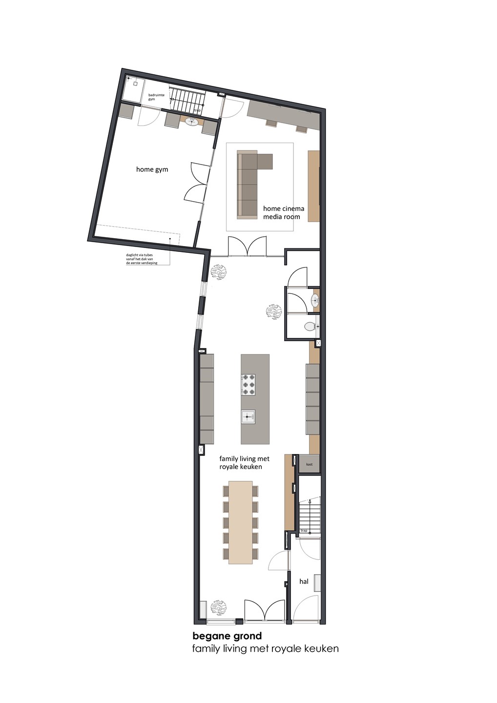
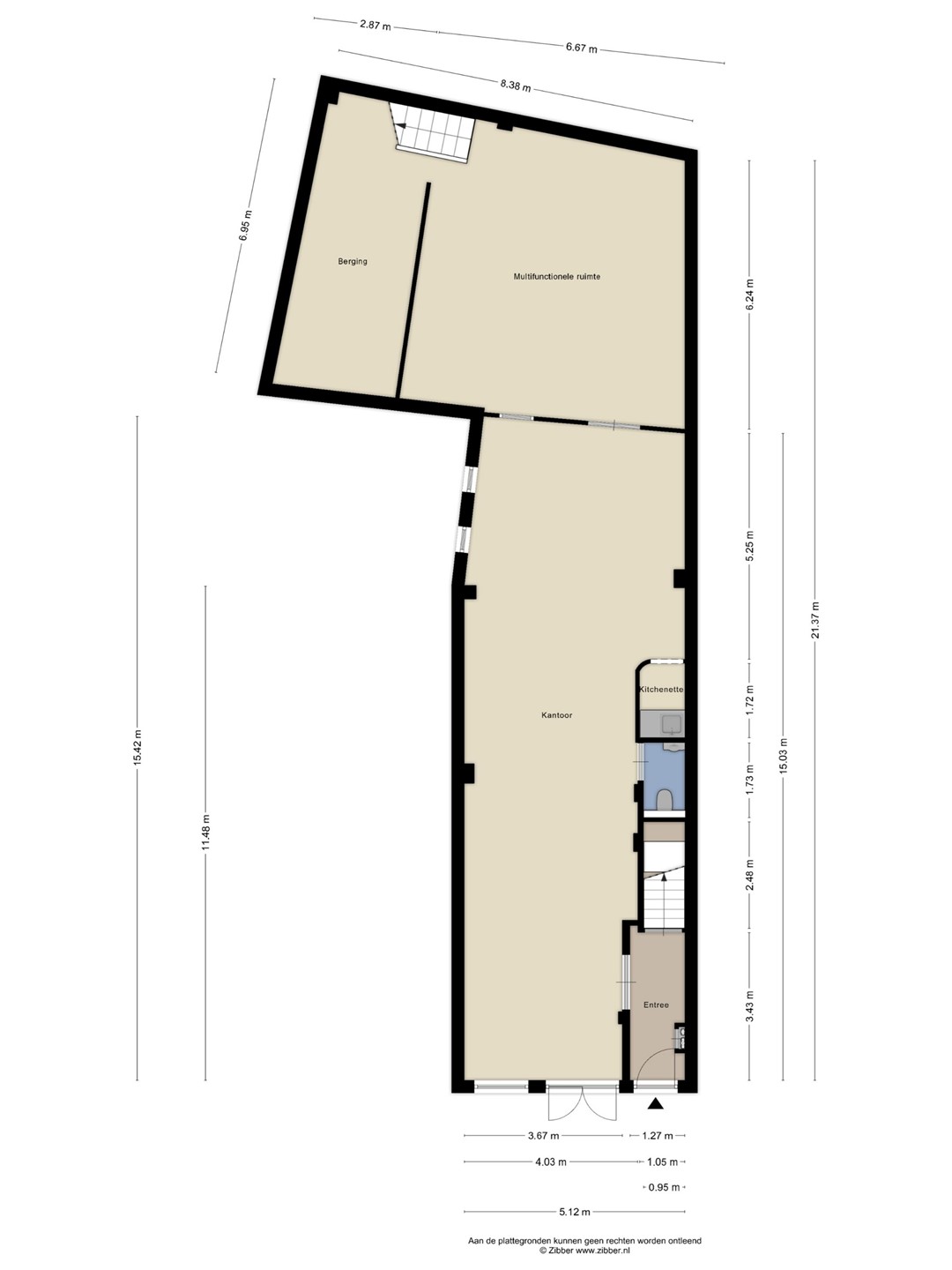
De royale begane grond van circa 137 m² beschikt over een eigen entree en eigen nutsvoorzieningen, wat het pand uitermate geschikt maakt voor dubbele bewoning of werken aan huis.
Een bijzonder pluspunt is het riante en zonnige dakterras van circa 83 m², dat veel privacy biedt en ruimte heeft voor meerdere zitplekken.
Indeling
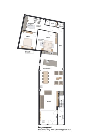
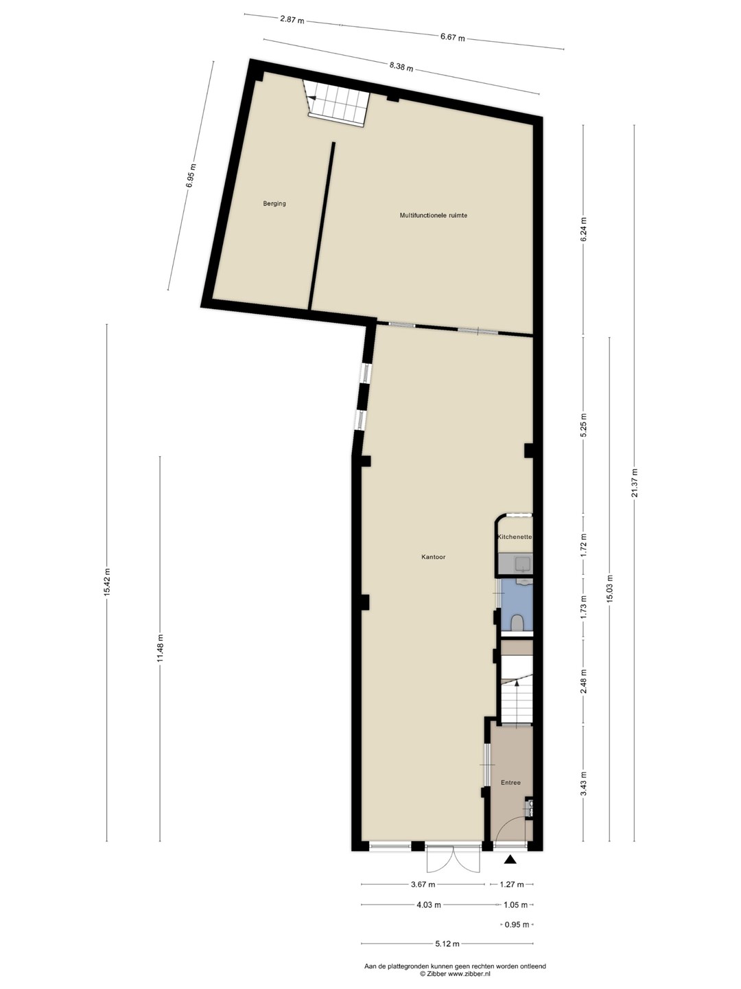
Begane grond
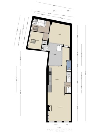
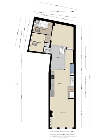
Entree en gang met toegang tot de multifunctionele ruimte, voorzien van een toilet en kitchenette. Aansluitingen voor het realiseren van een badkamer en volwaardige keuken zijn aanwezig. Het voorste gedeelte is momenteel in gebruik als kantoor, het achterste deel als sport- en recreatieruimte.
Eerste verdieping
Lichte en sfeervolle woonkamer met open haard en een prachtig uitzicht over de gracht. In open verbinding met de eetkeuken, die is voorzien van alle gebruikelijke apparatuur. Via een schuifpui is de groene, beschutte binnentuin bereikbaar: een oase van rust midden in de stad, met een doorloop naar de hoger gelegen dakterrassen. Separaat toilet met fontein. Tevens bevinden zich op deze verdieping een tweede (woon)kamer en een slaapkamer.
Tweede verdieping
Zeer ruime ouderslaapkamer met een badkamer en suite, voorzien van een ligbad met jacuzzi, dubbele douche, toilet en dubbele wastafel. Openslaande deuren geven direct toegang tot het grote, zonnige dakterras.
Derde verdieping
Overloop met aan de voorzijde een sfeervolle slaapkamer onder de kap, voorzien van een slaapvide. Aan de achterzijde bevindt zich nog een ruime slaapkamer met dakkapel. Hier is tevens de mogelijkheid om een extra badkamer te realiseren.
Bijzonderheden:
-diverse opties mogelijk, zie plattegronden voor wat opties (zoals veel meer slaapkamers)
-meerdere entrees (fiscaal voordeel)
-ruim dakterras met veel zon
-hobby's en combinatie van woon/werken
-keuring aanwezig
Denk hierbij aan diverse gebruiksmogelijkheden, zoals:
*een volledig woonhuis met bijvoorbeeld een royale woonkeuken op de begane grond, aangevuld met een bioscoop en gym en een appartement voor kinderen of gasten;
*een combinatie van wonen en werken, zoals een kantoor of praktijkruimte aan huis;
* een ruim woonhuis met een zelfstandig appartement voor kinderen, au pair of gasten;
*of een afzonderlijk appartement op de begane grond met daarboven een riante bovenwoning voor eigen bewoning en/of verhuur.
Om een goed beeld te geven van de indelingsmogelijkheden zijn diverse plattegronden toegevoegd.
Aan de Nieuwe Rijn bevindt zich dit verrassend ruime grachtenpand met een prachtig uitzicht over het water. Op loopafstand ligt alles wat het stadsleven aantrekkelijk maakt: winkels, de wekelijkse markt, gezellige terrassen, restaurants, musea en theaters.
De royale begane grond van circa 137 m² beschikt over een eigen entree en eigen nutsvoorzieningen, wat het pand uitermate geschikt maakt voor dubbele bewoning of werken aan huis.
Een bijzonder pluspunt is het riante en zonnige dakterras van circa 83 m², dat veel privacy biedt en ruimte heeft voor meerdere zitplekken.
Indeling
Begane grond
Entree en gang met toegang tot de multifunctionele ruimte, voorzien van een toilet en kitchenette. Aansluitingen voor het realiseren van een badkamer en volwaardige keuken zijn aanwezig. Het voorste gedeelte is momenteel in gebruik als kantoor, het achterste deel als sport- en recreatieruimte.
Eerste verdieping
Lichte en sfeervolle woonkamer met open haard en een prachtig uitzicht over de gracht. In open verbinding met de eetkeuken, die is voorzien van alle gebruikelijke apparatuur. Via een schuifpui is de groene, beschutte binnentuin bereikbaar: een oase van rust midden in de stad, met een doorloop naar de hoger gelegen dakterrassen. Separaat toilet met fontein. Tevens bevinden zich op deze verdieping een tweede (woon)kamer en een slaapkamer.
Tweede verdieping
Zeer ruime ouderslaapkamer met een badkamer en suite, voorzien van een ligbad met jacuzzi, dubbele douche, toilet en dubbele wastafel. Openslaande deuren geven direct toegang tot het grote, zonnige dakterras.
Derde verdieping
Overloop met aan de voorzijde een sfeervolle slaapkamer onder de kap, voorzien van een slaapvide. Aan de achterzijde bevindt zich nog een ruime slaapkamer met dakkapel. Hier is tevens de mogelijkheid om een extra badkamer te realiseren.
Bijzonderheden:
-diverse opties mogelijk, zie plattegronden voor wat opties (zoals veel meer slaapkamers)
-meerdere entrees (fiscaal voordeel)
-ruim dakterras met veel zon
-hobby's en combinatie van woon/werken
-keuring aanwezig