Met een eigen account kun je panden volgen, opslaan als favoriet, je zoekprofiel opslaan en jouw eigen notities bij een huis maken.
Algemeen
Uniek grachtenpand met karakter, ruimte en potentie
Aan een van de zonnigste grachten van Leiden bieden wij u dit imposante en karakteristieke grachtenpand aan: Oude Singel 76. Gelegen op een toplocatie in het hart van de historische binnenstad, op steenworp afstand van musea, winkels, horeca en het Centraal Station, biedt dit pand een zeldzame combinatie van ruimte, authenticiteit en veelzi... Meer informatie
Aan een van de zonnigste grachten van Leiden bieden wij u dit imposante en karakteristieke grachtenpand aan: Oude Singel 76. Gelegen op een toplocatie in het hart van de historische binnenstad, op steenworp afstand van musea, winkels, horeca en het Centraal Station, biedt dit pand een zeldzame combinatie van ruimte, authenticiteit en veelzi... Meer informatie
-
Kenmerken
Alle kenmerken Type object Woonhuis, grachtenpand, tussenwoning Bouwperiode 1750 Status Onder bod Aangeboden sinds Woensdag 28 januari 2026 -
Locatie
Kenmerken
| Overdracht | |
|---|---|
| Referentienummer | 00326 |
| Vraagprijs | € 900.000,- k.k. |
| Inrichting | Niet gestoffeerd |
| Inrichting | Niet gemeubileerd |
| Status | Onder bod |
| Aanvaarding | In overleg |
| Aangeboden sinds | Woensdag 28 januari 2026 |
| Laatste wijziging | Vrijdag 10 april 2026 |
| Bouw | |
|---|---|
| Type object | Woonhuis, grachtenpand, tussenwoning |
| Soort bouw | Bestaande bouw |
| Bouwperiode | 1750 |
| Dakbedekking | Dakpannen |
| Type dak | Zadeldak |
| Keurmerken | Bouwkundige keuring |
| Oppervlaktes en inhoud | |
|---|---|
| Perceeloppervlakte | 99 m² |
| Woonoppervlakte | 297,06 m² |
| Inhoud | 1.144 m³ |
| Oppervlakte gebouwgebonden buitenruimte | 10,95 m² |
| Indeling | |
|---|---|
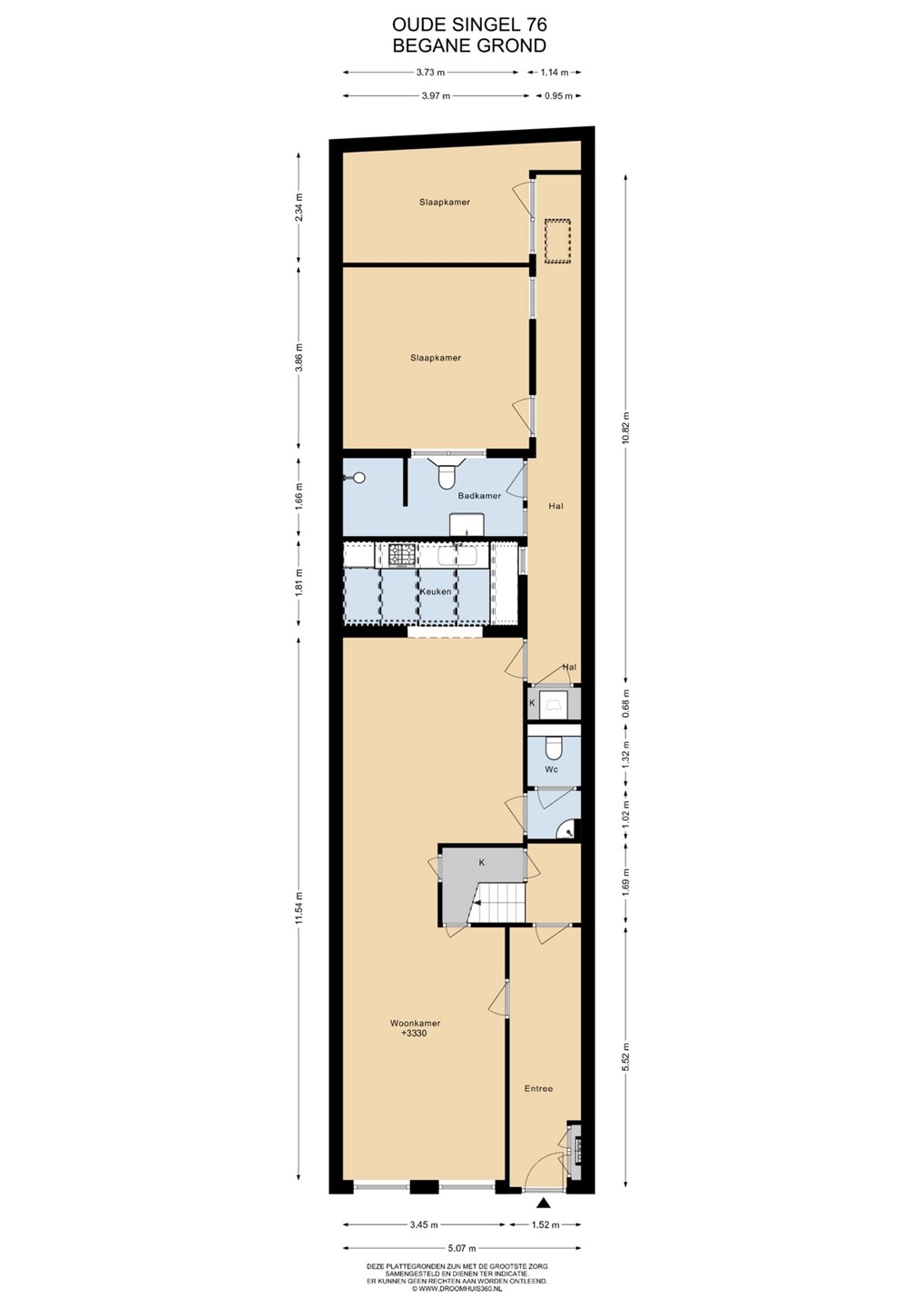
| Aantal bouwlagen | 4 |
| Aantal kamers | 11 (waarvan 8 slaapkamers) |
| Aantal badkamers | 3 (en 2 aparte toiletten) |
| Locatie | |
|---|---|
| Ligging | Dichtbij openbaar vervoer, In centrum, In woonwijk, Nabij school, Nabij snelweg |
| CV ketel | |
|---|---|
| Warmtebron | Gas |
| Combiketel | Ja |
| Eigendom | Eigendom |
| Uitrusting | |
|---|---|
| Warm water | CV-ketel |
| Verwarmingssysteem | Centrale verwarming |
| Ventilatie methode | Natuurlijke ventilatie |
| Badkamervoorzieningen Badkamer 1 | Inloopdouche, Toilet, Wastafel |
| Badkamervoorzieningen Badkamer 2 | Douche, Toilet |
| Badkamervoorzieningen Badkamer 3 | Douche, Toilet, Wastafel |
| Heeft kabel-tv | Ja |
| Telefoonaansluiting aanwezig | Ja |
| Beschikt over een internetverbinding | Ja |
| Kadastrale gegevens | |
|---|---|
| Kadastrale aanduiding | Leiden B 1050 |
| Perceeloppervlakte | 99 m² |
| Omvang | Geheel perceel |
| Eigendomsituatie | Eigen grond |
Beschrijving
Uniek grachtenpand met karakter, ruimte en potentie
Aan een van de zonnigste grachten van Leiden bieden wij u dit imposante en karakteristieke grachtenpand aan: Oude Singel 76. Gelegen op een toplocatie in het hart van de historische binnenstad, op steenworp afstand van musea, winkels, horeca en het Centraal Station, biedt dit pand een zeldzame combinatie van ruimte, authenticiteit en veelzijdigheid.
Bijzonderheden van het pand:
• Woonoppervlak van maar liefst ca. 300 m²
• Momenteel opgedeeld in drie wooneenheden
• (Nog) geen splitsingsvergunning aanwezig
• Tal van originele details, waaronder eikenhouten paneeldeuren en authentieke elementen
• Gelegen aan een brede, zonnige gracht met uitzicht op de iconische Marekerk
• Mogelijkheid tot het verkrijgen van een parkeervergunning (voor de deur)
Indeling:
Het pand is thans ingedeeld in drie afzonderlijke wooneenheden, verdeeld over meerdere verdiepingen, wat het uitermate geschikt maakt voor gebruik als royaal familiehuis, combinatie van wonen en werken, of als belegging na het verkrijgen van een splitsingsvergunning.
Elke verdieping ademt karakter dankzij hoge plafonds, originele houten elementen en een prettige lichtinval. Vanuit verschillende vertrekken en vooral aan de voorzijde van het pand geniet u van een prachtig uitzicht over de gracht én de karakteristieke koepel van de Marekerk – een van de beeldbepalende monumenten van Leiden.
Ligging:
De Oude Singel staat bekend als een van de mooiste en zonnigste grachten van Leiden. Met uitzicht op het water én de Marekerk, en alle voorzieningen van de binnenstad op loopafstand, geniet u hier van het beste dat de stad te bieden heeft: rust, ruimte en stedelijke allure.
Kortom:
Een uitzonderlijke kans voor de liefhebber van monumentale panden, de investeerder met visie of de stadsmens die ruim, stijlvol en centraal wil wonen. Met bijna 300 m² aan mogelijkheden, een rijke geschiedenis en een ongeëvenaarde ligging is Oude Singel 76 een pand om verliefd op te worden.
Bezichtigingen uitsluitend op afspraak
Aan een van de zonnigste grachten van Leiden bieden wij u dit imposante en karakteristieke grachtenpand aan: Oude Singel 76. Gelegen op een toplocatie in het hart van de historische binnenstad, op steenworp afstand van musea, winkels, horeca en het Centraal Station, biedt dit pand een zeldzame combinatie van ruimte, authenticiteit en veelzijdigheid.
Bijzonderheden van het pand:
• Woonoppervlak van maar liefst ca. 300 m²
• Momenteel opgedeeld in drie wooneenheden
• (Nog) geen splitsingsvergunning aanwezig
• Tal van originele details, waaronder eikenhouten paneeldeuren en authentieke elementen
• Gelegen aan een brede, zonnige gracht met uitzicht op de iconische Marekerk
• Mogelijkheid tot het verkrijgen van een parkeervergunning (voor de deur)
Indeling:
Het pand is thans ingedeeld in drie afzonderlijke wooneenheden, verdeeld over meerdere verdiepingen, wat het uitermate geschikt maakt voor gebruik als royaal familiehuis, combinatie van wonen en werken, of als belegging na het verkrijgen van een splitsingsvergunning.
Elke verdieping ademt karakter dankzij hoge plafonds, originele houten elementen en een prettige lichtinval. Vanuit verschillende vertrekken en vooral aan de voorzijde van het pand geniet u van een prachtig uitzicht over de gracht én de karakteristieke koepel van de Marekerk – een van de beeldbepalende monumenten van Leiden.
Ligging:
De Oude Singel staat bekend als een van de mooiste en zonnigste grachten van Leiden. Met uitzicht op het water én de Marekerk, en alle voorzieningen van de binnenstad op loopafstand, geniet u hier van het beste dat de stad te bieden heeft: rust, ruimte en stedelijke allure.
Kortom:
Een uitzonderlijke kans voor de liefhebber van monumentale panden, de investeerder met visie of de stadsmens die ruim, stijlvol en centraal wil wonen. Met bijna 300 m² aan mogelijkheden, een rijke geschiedenis en een ongeëvenaarde ligging is Oude Singel 76 een pand om verliefd op te worden.
Bezichtigingen uitsluitend op afspraak