Met een eigen account kun je panden volgen, opslaan als favoriet, je zoekprofiel opslaan en jouw eigen notities bij een huis maken.
Algemeen
English version below!
Waardstraat 19, Leiden – Tussenwoning met charme en potentie
Deze karakteristieke tussenwoning uit 1915, gelegen in de populaire Waard, biedt circa 77 m² woonoppervlak en volop mogelijkheden voor wie een woning naar eigen smaak wil maken.
Highlights:
• Lichte en ruime woonkamer
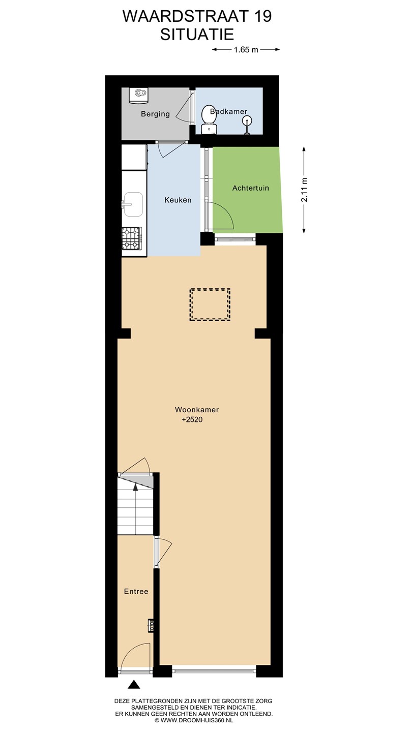
• Badkamer op de begane grond met toilet en douche
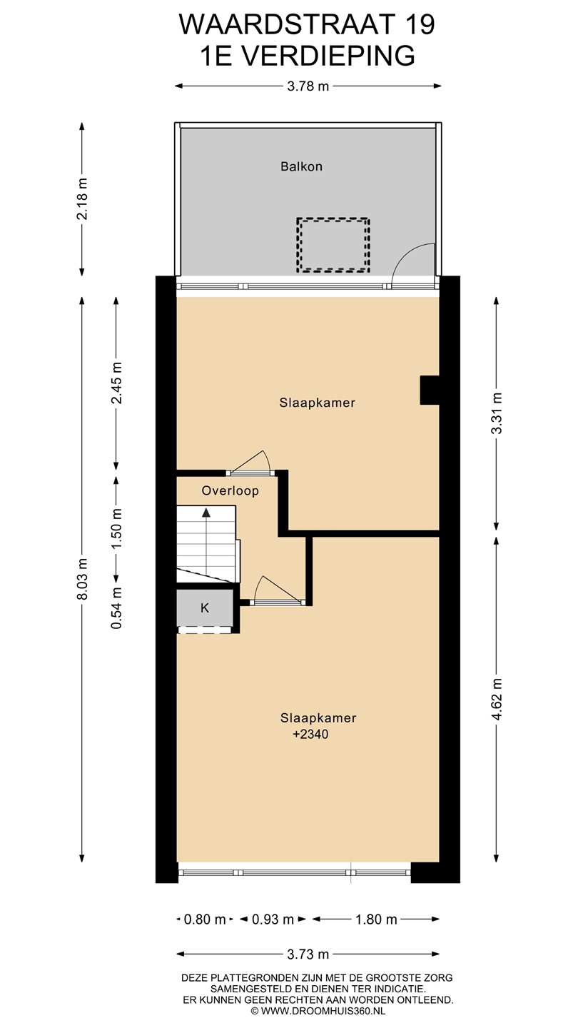
• Twee slaapkamers op de eerste... Meer informatie
Waardstraat 19, Leiden – Tussenwoning met charme en potentie
Deze karakteristieke tussenwoning uit 1915, gelegen in de populaire Waard, biedt circa 77 m² woonoppervlak en volop mogelijkheden voor wie een woning naar eigen smaak wil maken.
Highlights:
• Lichte en ruime woonkamer
• Badkamer op de begane grond met toilet en douche
• Twee slaapkamers op de eerste... Meer informatie
-
Kenmerken
Alle kenmerken Type object Woonhuis, eengezinswoning, tussenwoning Bouwperiode 1915 Status Onder bod Aangeboden sinds Dinsdag 14 oktober 2025 -
Locatie
Kenmerken
| Overdracht | |
|---|---|
| Referentienummer | 00271 |
| Vraagprijs | € 350.000,- k.k. |
| Inrichting | Niet gestoffeerd |
| Inrichting | Niet gemeubileerd |
| Status | Onder bod |
| Aanvaarding | In overleg |
| Aangeboden sinds | Dinsdag 14 oktober 2025 |
| Laatste wijziging | Maandag 3 november 2025 |
| Bouw | |
|---|---|
| Type object | Woonhuis, eengezinswoning, tussenwoning |
| Soort bouw | Bestaande bouw |
| Bouwperiode | 1915 |
| Dakbedekking | Dakpannen |
| Type dak | Lessenaarsdak |
| Keurmerken | Bouwkundige keuring |
| Isolatievormen | Grotendeels dubbel glas |
| Oppervlaktes en inhoud | |
|---|---|
| Perceeloppervlakte | 57 m² |
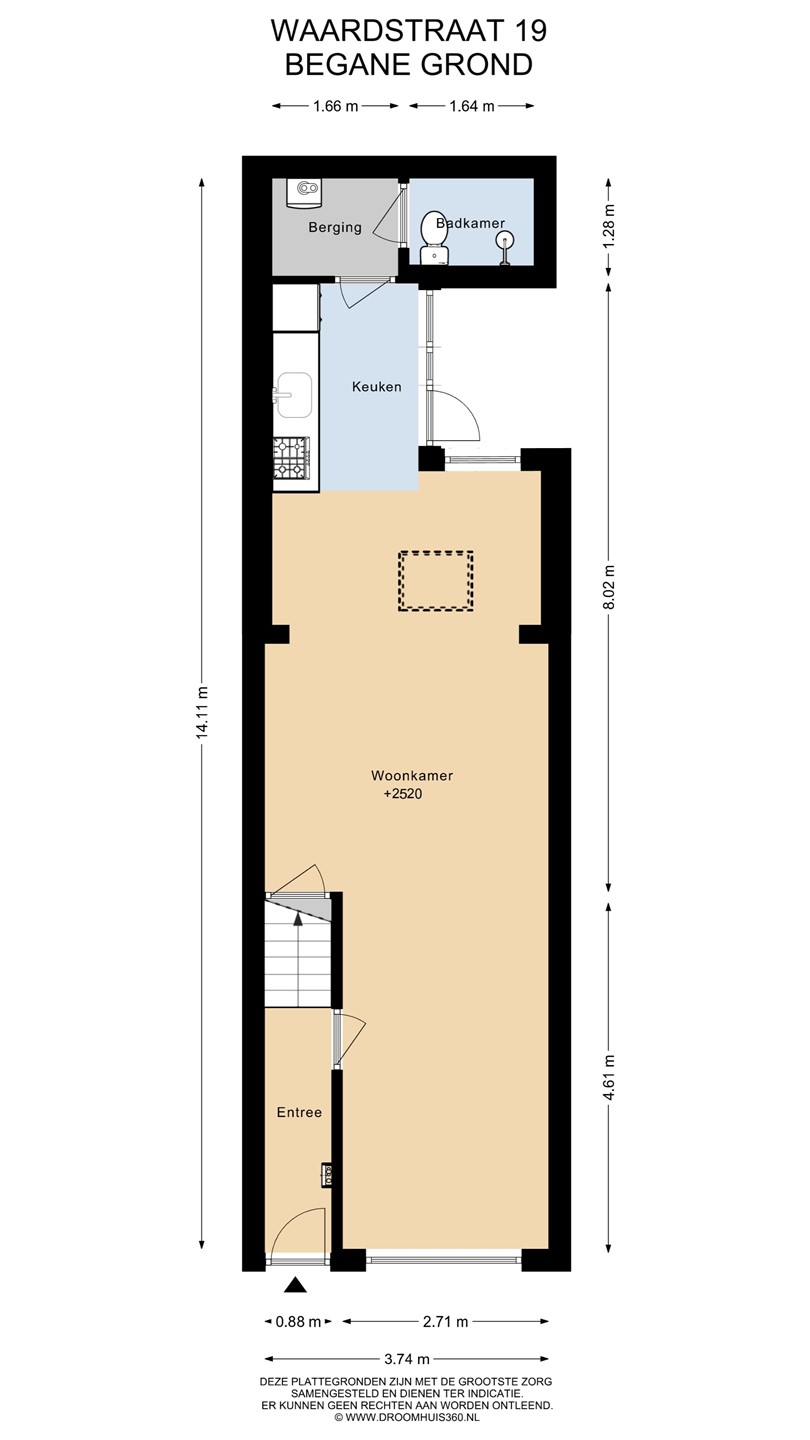
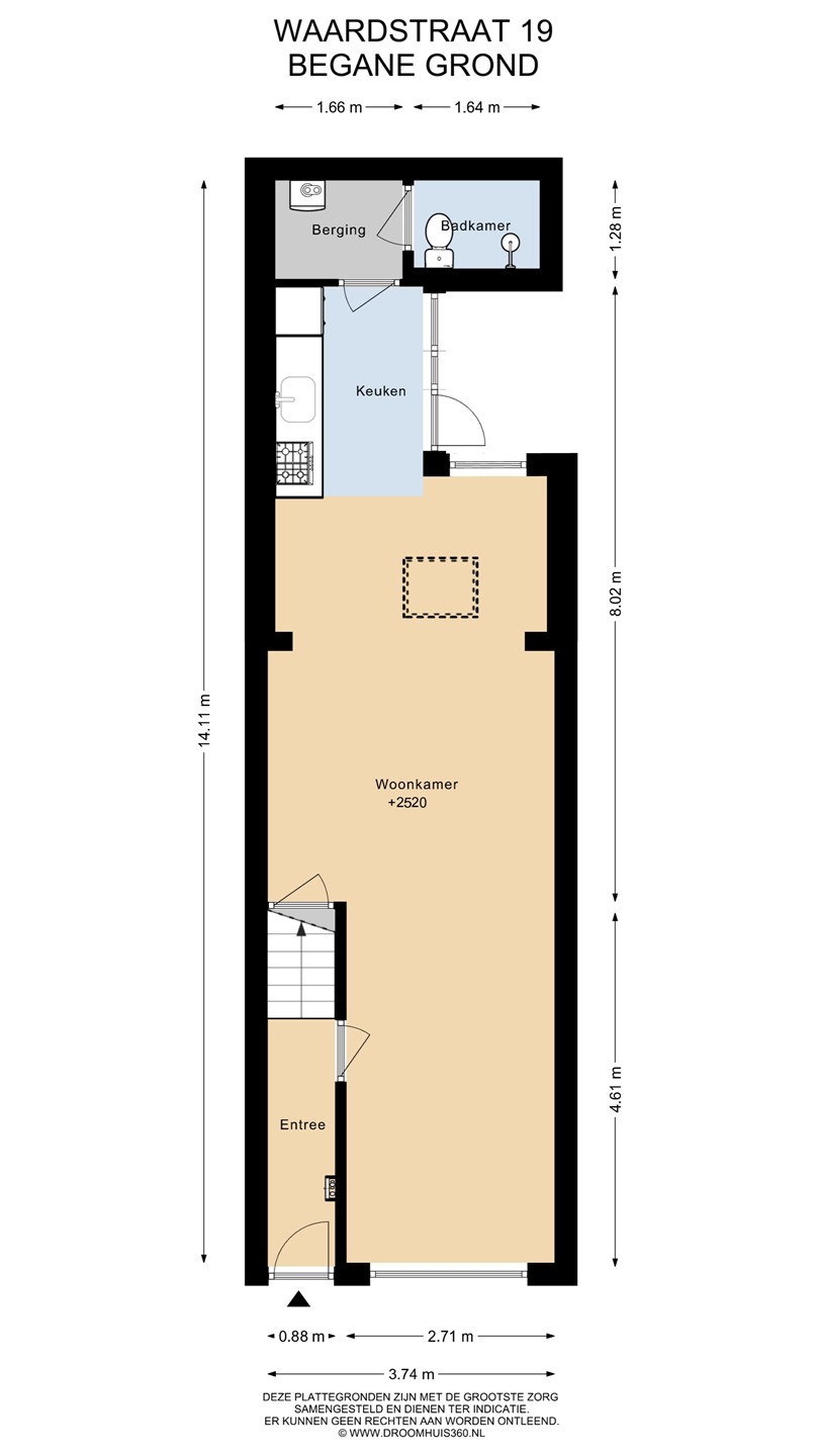
| Woonoppervlakte | 77,1 m² |
| Inhoud | 273 m³ |
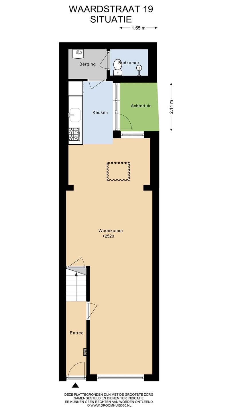
| Oppervlakte gebouwgebonden buitenruimte | 8,24 m² |
| Indeling | |
|---|---|
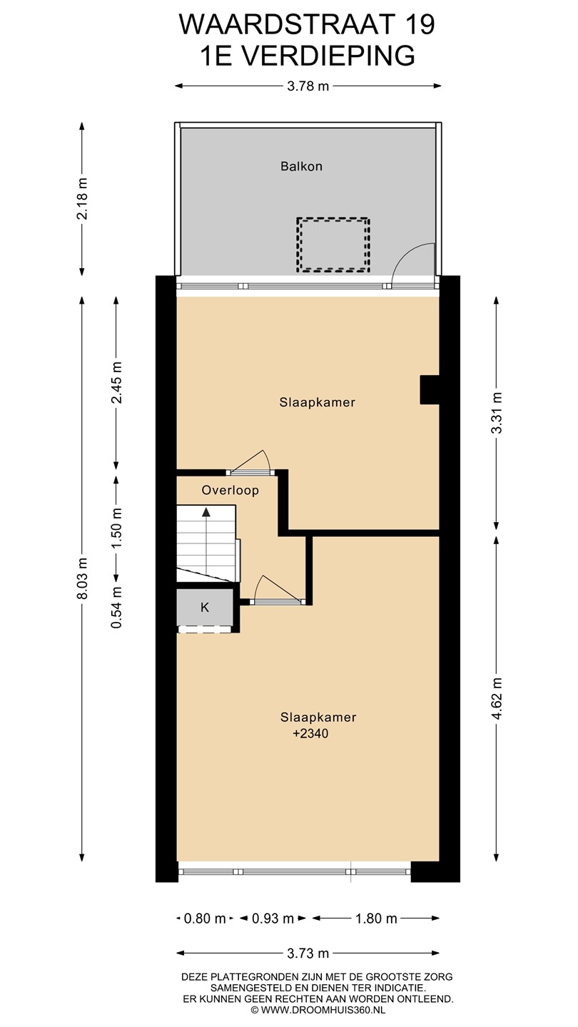
| Aantal bouwlagen | 2 |
| Aantal kamers | 3 (waarvan 2 slaapkamers) |
| Aantal badkamers | 1 |
| Locatie | |
|---|---|
| Ligging | Dichtbij openbaar vervoer, In woonwijk, Nabij school, Nabij snelweg |
| Tuin | |
|---|---|
| Type | Achtertuin |
| Hoofdtuin | Ja |
| Oriëntering | Noorden |
| Staat | Normaal |
| Energieverbruik | |
|---|---|
| Energielabel | G |
| CV ketel | |
|---|---|
| Warmtebron | Gas |
| Combiketel | Ja |
| Eigendom | Eigendom |
| Uitrusting | |
|---|---|
| Warm water | CV-ketel |
| Verwarmingssysteem | Centrale verwarming |
| Ventilatie methode | Natuurlijke ventilatie |
| Badkamervoorzieningen | Inloopdouche, Toilet |
| Heeft een balkon | Ja |
| Heeft kabel-tv | Ja |
| Tuin aanwezig | Ja |
| Telefoonaansluiting aanwezig | Ja |
| Beschikt over een internetverbinding | Ja |
| Kadastrale gegevens | |
|---|---|
| Kadastrale aanduiding | Leiden K 5318 |
| Perceeloppervlakte | 57 m² |
| Omvang | Geheel perceel |
| Eigendomsituatie | Eigen grond |
Beschrijving
English version below!
Waardstraat 19, Leiden – Tussenwoning met charme en potentie
Deze karakteristieke tussenwoning uit 1915, gelegen in de populaire Waard, biedt circa 77 m² woonoppervlak en volop mogelijkheden voor wie een woning naar eigen smaak wil maken.
Highlights:
• Lichte en ruime woonkamer
• Badkamer op de begane grond met toilet en douche
• Twee slaapkamers op de eerste verdieping
• Balkon aan de achterzijde
• Rapport van bouwtechnische keuring aanwezig
Over de wijk:
De Waard is een gezellige en rustige buurt, ideaal gelegen op een steenworp afstand van het bruisende centrum van Leiden. Op loopafstand vind je het station, supermarkt, diverse speciaalzaken én het prachtige Singelpark. Hier geniet je van het gemak van de stad, terwijl je toch in een groene en sfeervolle omgeving woont.
Deze woning vraagt om wat liefde en aandacht, maar biedt een unieke kans om een sfeervol thuis te creëren.
-------------------------------------------------------------
Waardstraat 19, Leiden – Charming Mid-Terrace House with Great Potential
This characteristic mid-terrace house from 1915, located in the popular Waard district, offers approximately 77 m² of living space and plenty of opportunities for anyone looking to create a home entirely to their own taste.
Highlights:
• Bright and spacious living room
• Ground-floor bathroom with toilet and shower
• Two bedrooms on the first floor
• Rear-facing balcony
• Structural inspection report available
About the neighbourhood:
De Waard is a friendly and peaceful area, ideally located just a stone’s throw from Leiden’s vibrant city centre. Within walking distance, you’ll find the train station, supermarket, various specialty shops, and the beautiful Singelpark. Here, you can enjoy all the conveniences of city living while still being surrounded by greenery and charm.
This house requires some love and attention, but it offers a unique opportunity to create a warm and characterful home.
Waardstraat 19, Leiden – Tussenwoning met charme en potentie
Deze karakteristieke tussenwoning uit 1915, gelegen in de populaire Waard, biedt circa 77 m² woonoppervlak en volop mogelijkheden voor wie een woning naar eigen smaak wil maken.
Highlights:
• Lichte en ruime woonkamer
• Badkamer op de begane grond met toilet en douche
• Twee slaapkamers op de eerste verdieping
• Balkon aan de achterzijde
• Rapport van bouwtechnische keuring aanwezig
Over de wijk:
De Waard is een gezellige en rustige buurt, ideaal gelegen op een steenworp afstand van het bruisende centrum van Leiden. Op loopafstand vind je het station, supermarkt, diverse speciaalzaken én het prachtige Singelpark. Hier geniet je van het gemak van de stad, terwijl je toch in een groene en sfeervolle omgeving woont.
Deze woning vraagt om wat liefde en aandacht, maar biedt een unieke kans om een sfeervol thuis te creëren.
-------------------------------------------------------------
Waardstraat 19, Leiden – Charming Mid-Terrace House with Great Potential
This characteristic mid-terrace house from 1915, located in the popular Waard district, offers approximately 77 m² of living space and plenty of opportunities for anyone looking to create a home entirely to their own taste.
Highlights:
• Bright and spacious living room
• Ground-floor bathroom with toilet and shower
• Two bedrooms on the first floor
• Rear-facing balcony
• Structural inspection report available
About the neighbourhood:
De Waard is a friendly and peaceful area, ideally located just a stone’s throw from Leiden’s vibrant city centre. Within walking distance, you’ll find the train station, supermarket, various specialty shops, and the beautiful Singelpark. Here, you can enjoy all the conveniences of city living while still being surrounded by greenery and charm.
This house requires some love and attention, but it offers a unique opportunity to create a warm and characterful home.