Met een eigen account kun je panden volgen, opslaan als favoriet, je zoekprofiel opslaan en jouw eigen notities bij een huis maken.
Algemeen
Ruime 2-onder-1-kapwoning met vrij zicht over groen en water
Welkom bij Bernhardstraat 24 in Leiderdorp!
Deze charmante 2-onder-1-kapwoning uit 1961 ligt in de geliefde Oranjewijk en biedt alles wat u zoekt: ruimte, rust en een fijne ligging met vrij uitzicht over groen en water. Met een ruim perceel van 206 m², een extra grote vrijstaande garage van ca. 26 m² en een woonoppervlak van maa... Meer informatie
Welkom bij Bernhardstraat 24 in Leiderdorp!
Deze charmante 2-onder-1-kapwoning uit 1961 ligt in de geliefde Oranjewijk en biedt alles wat u zoekt: ruimte, rust en een fijne ligging met vrij uitzicht over groen en water. Met een ruim perceel van 206 m², een extra grote vrijstaande garage van ca. 26 m² en een woonoppervlak van maa... Meer informatie
-
Kenmerken
Alle kenmerken Type object Woonhuis, eengezinswoning, twee onder een kap woning Bouwperiode 1961 Status Verkocht onder voorbehoud Aangeboden sinds Woensdag 29 oktober 2025 -
Locatie
Kenmerken
| Overdracht | |
|---|---|
| Referentienummer | 00290 |
| Vraagprijs | € 589.000,- k.k. |
| Inrichting | Niet gestoffeerd |
| Inrichting | Niet gemeubileerd |
| Status | Verkocht onder voorbehoud |
| Aanvaarding | In overleg |
| Aangeboden sinds | Woensdag 29 oktober 2025 |
| Laatste wijziging | Donderdag 27 november 2025 |
| Bouw | |
|---|---|
| Type object | Woonhuis, eengezinswoning, twee onder een kap woning |
| Soort bouw | Bestaande bouw |
| Bouwperiode | 1961 |
| Dakbedekking | Dakpannen |
| Type dak | Zadeldak |
| Keurmerken | Bouwkundige keuring |
| Isolatievormen | Dakisolatie, HR-glas |
| Oppervlaktes en inhoud | |
|---|---|
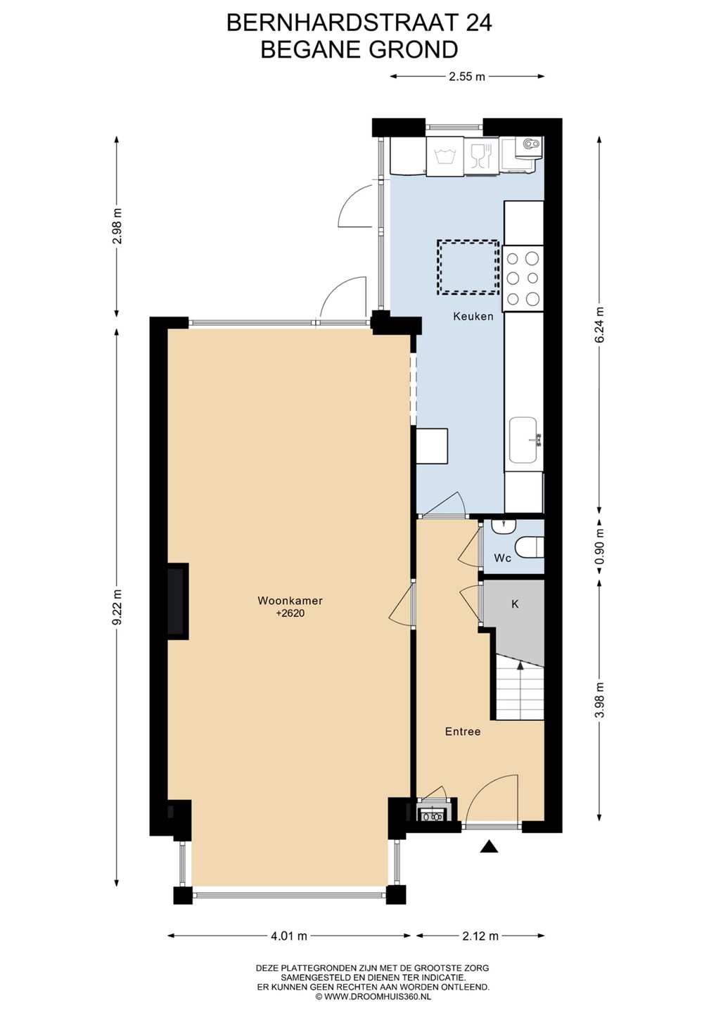
| Perceeloppervlakte | 206 m² |
| Woonoppervlakte | 141 m² |
| Inhoud | 493 m³ |
| Oppervlakte externe bergruimte | 25,5 m² |
| Oppervlakte gebouwgebonden buitenruimte | 5,04 m² |
| Indeling | |
|---|---|
| Aantal bouwlagen | 3 |
| Aantal kamers | 6 (waarvan 5 slaapkamers) |
| Aantal badkamers | 1 (en 2 aparte toiletten) |
| Locatie | |
|---|---|
| Ligging | Dichtbij openbaar vervoer, In woonwijk, Nabij school, Nabij snelweg |
| Tuin | |
|---|---|
| Type | Voortuin |
| Oriëntering | Zuid-west |
| Staat | Normaal |
| Tuin 2 - Type | Achtertuin |
| Tuin 2 - Hoofdtuin | Ja |
| Tuin 2 - Oriëntering | Noord-oost |
| Tuin 2 - Heeft een achterom | Ja |
| Tuin 2 - Staat | Normaal |
| Energieverbruik | |
|---|---|
| Energielabel | E |
| CV ketel | |
|---|---|
| Warmtebron | Gas |
| Bouwjaar | 2019 |
| Combiketel | Ja |
| Eigendom | Eigendom |
| Uitrusting | |
|---|---|
| Aantal parkeerplaatsen | 1 |
| Aantal overdekte parkeerplaatsen | 1 |
| Warm water | CV-ketel |
| Verwarmingssysteem | Centrale verwarming |
| Ventilatie methode | Natuurlijke ventilatie |
| Keukenvoorzieningen | Inbouwapparatuur |
| Badkamervoorzieningen | Douche, Ligbad, Wastafel |
| Parkeergelegenheid | Vrijstaande stenen garage |
| Heeft een balkon | Ja |
| Heeft kabel-tv | Ja |
| Tuin aanwezig | Ja |
| Heeft een garage | Ja |
| Telefoonaansluiting aanwezig | Ja |
| Beschikt over een internetverbinding | Ja |
| Heeft schuur/berging | Ja |
| Heeft zonwering | Ja |
| Kadastrale gegevens | |
|---|---|
| Kadastrale aanduiding | Leiderdorp B 2223 |
| Perceeloppervlakte | 206 m² |
| Omvang | Geheel perceel |
| Eigendomsituatie | Eigen grond |
Beschrijving
Ruime 2-onder-1-kapwoning met vrij zicht over groen en water
Welkom bij Bernhardstraat 24 in Leiderdorp!
Deze charmante 2-onder-1-kapwoning uit 1961 ligt in de geliefde Oranjewijk en biedt alles wat u zoekt: ruimte, rust en een fijne ligging met vrij uitzicht over groen en water. Met een ruim perceel van 206 m², een extra grote vrijstaande garage van ca. 26 m² en een woonoppervlak van maar liefst 141 m² is dit de ideale gezinswoning met volop mogelijkheden.
De woning beschikt over een lichte woonkamer, vijf slaapkamers en een zonnige achtertuin met veel privacy. Hier kunt u heerlijk genieten van het buitenleven. De woning is netjes onderhouden, maar verdient op enkele punten wat liefde en modernisering — perfect voor wie een huis naar eigen smaak wil maken!
Pluspunten:
Vrij zicht over groen en water
Riant perceel van 206 m²
Extra ruime vrijstaande garage met berging (ca. 26 m²)
141 m² woonoppervlak
5 slaapkamers
Lichte en ruime woonkamer
Zonnige achtertuin met veel privacy
Rustige ligging in de gewilde Oranjewijk
Woning met karakter én potentie
De Oranjewijk:
De Oranjewijk is een groene, rustige en kindvriendelijke buurt met alle voorzieningen dichtbij. Basisscholen, speelplekken, sportfaciliteiten en het gezellige centrum van Leiderdorp liggen op loopafstand. Ook de bereikbaarheid is uitstekend — binnen enkele minuten bent u in Leiden of op de uitvalswegen richting de Randstad.
Kortom: een ruime en sfeervolle woning op een prachtige locatie, waar u met wat liefde en aandacht uw droomhuis van kunt maken.
Welkom bij Bernhardstraat 24 in Leiderdorp!
Deze charmante 2-onder-1-kapwoning uit 1961 ligt in de geliefde Oranjewijk en biedt alles wat u zoekt: ruimte, rust en een fijne ligging met vrij uitzicht over groen en water. Met een ruim perceel van 206 m², een extra grote vrijstaande garage van ca. 26 m² en een woonoppervlak van maar liefst 141 m² is dit de ideale gezinswoning met volop mogelijkheden.
De woning beschikt over een lichte woonkamer, vijf slaapkamers en een zonnige achtertuin met veel privacy. Hier kunt u heerlijk genieten van het buitenleven. De woning is netjes onderhouden, maar verdient op enkele punten wat liefde en modernisering — perfect voor wie een huis naar eigen smaak wil maken!
Pluspunten:
Vrij zicht over groen en water
Riant perceel van 206 m²
Extra ruime vrijstaande garage met berging (ca. 26 m²)
141 m² woonoppervlak
5 slaapkamers
Lichte en ruime woonkamer
Zonnige achtertuin met veel privacy
Rustige ligging in de gewilde Oranjewijk
Woning met karakter én potentie
De Oranjewijk:
De Oranjewijk is een groene, rustige en kindvriendelijke buurt met alle voorzieningen dichtbij. Basisscholen, speelplekken, sportfaciliteiten en het gezellige centrum van Leiderdorp liggen op loopafstand. Ook de bereikbaarheid is uitstekend — binnen enkele minuten bent u in Leiden of op de uitvalswegen richting de Randstad.
Kortom: een ruime en sfeervolle woning op een prachtige locatie, waar u met wat liefde en aandacht uw droomhuis van kunt maken.