Met een eigen account kun je panden volgen, opslaan als favoriet, je zoekprofiel opslaan en jouw eigen notities bij een huis maken.
Algemeen
Moderne, instapklare eengezinswoning met een zonnige en ruime tuin
Bent u op zoek naar een moderne, instapklare eengezinswoning met een zonnige tuin? Dan is deze woning aan de Soembastraat 65 precies wat u zoekt. Met een woonoppervlakte van circa 107 m², drie slaapkamers en een verzorgde afwerking biedt deze woning comfortabel woonplezier voor het hele gezin.
De lichte woonkamer vormt he... Meer informatie
Bent u op zoek naar een moderne, instapklare eengezinswoning met een zonnige tuin? Dan is deze woning aan de Soembastraat 65 precies wat u zoekt. Met een woonoppervlakte van circa 107 m², drie slaapkamers en een verzorgde afwerking biedt deze woning comfortabel woonplezier voor het hele gezin.
De lichte woonkamer vormt he... Meer informatie
-
Kenmerken
Alle kenmerken Type object Woonhuis, eengezinswoning, tussenwoning Bouwperiode 1941 Status Nieuw in verkoop Aangeboden sinds Dinsdag 10 maart 2026 -
Locatie
Kenmerken
| Overdracht | |
|---|---|
| Referentienummer | 00329 |
| Vraagprijs | € 575.000,- k.k. |
| Inrichting | Niet gestoffeerd |
| Inrichting | Niet gemeubileerd |
| Status | Nieuw in verkoop |
| Aanvaarding | In overleg |
| Aangeboden sinds | Dinsdag 10 maart 2026 |
| Bouw | |
|---|---|
| Type object | Woonhuis, eengezinswoning, tussenwoning |
| Soort bouw | Bestaande bouw |
| Bouwperiode | 1941 |
| Dakbedekking | Dakpannen |
| Type dak | Lessenaarsdak |
| Keurmerken | Bouwkundige keuring |
| Isolatievormen | HR-glas |
| Oppervlaktes en inhoud | |
|---|---|
| Perceeloppervlakte | 123 m² |
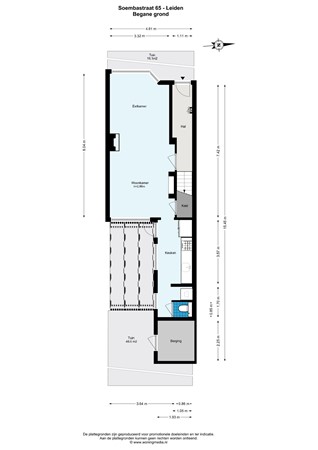
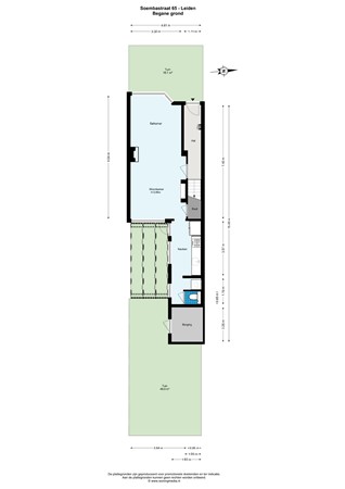
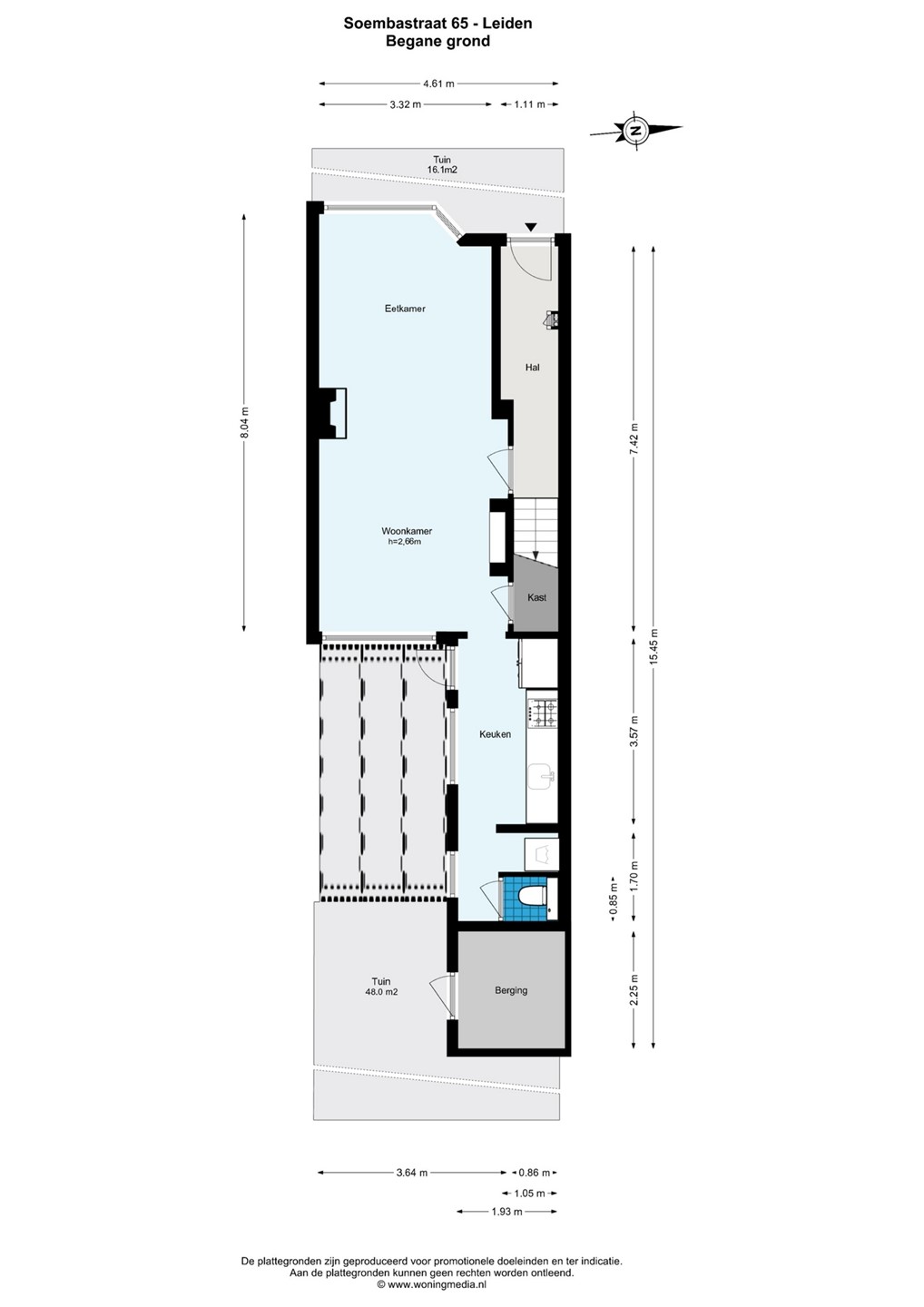
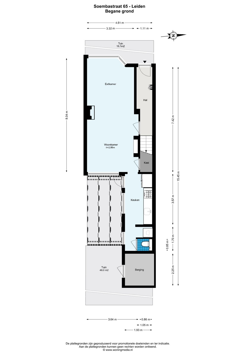
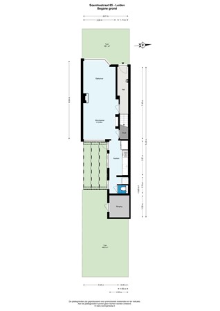
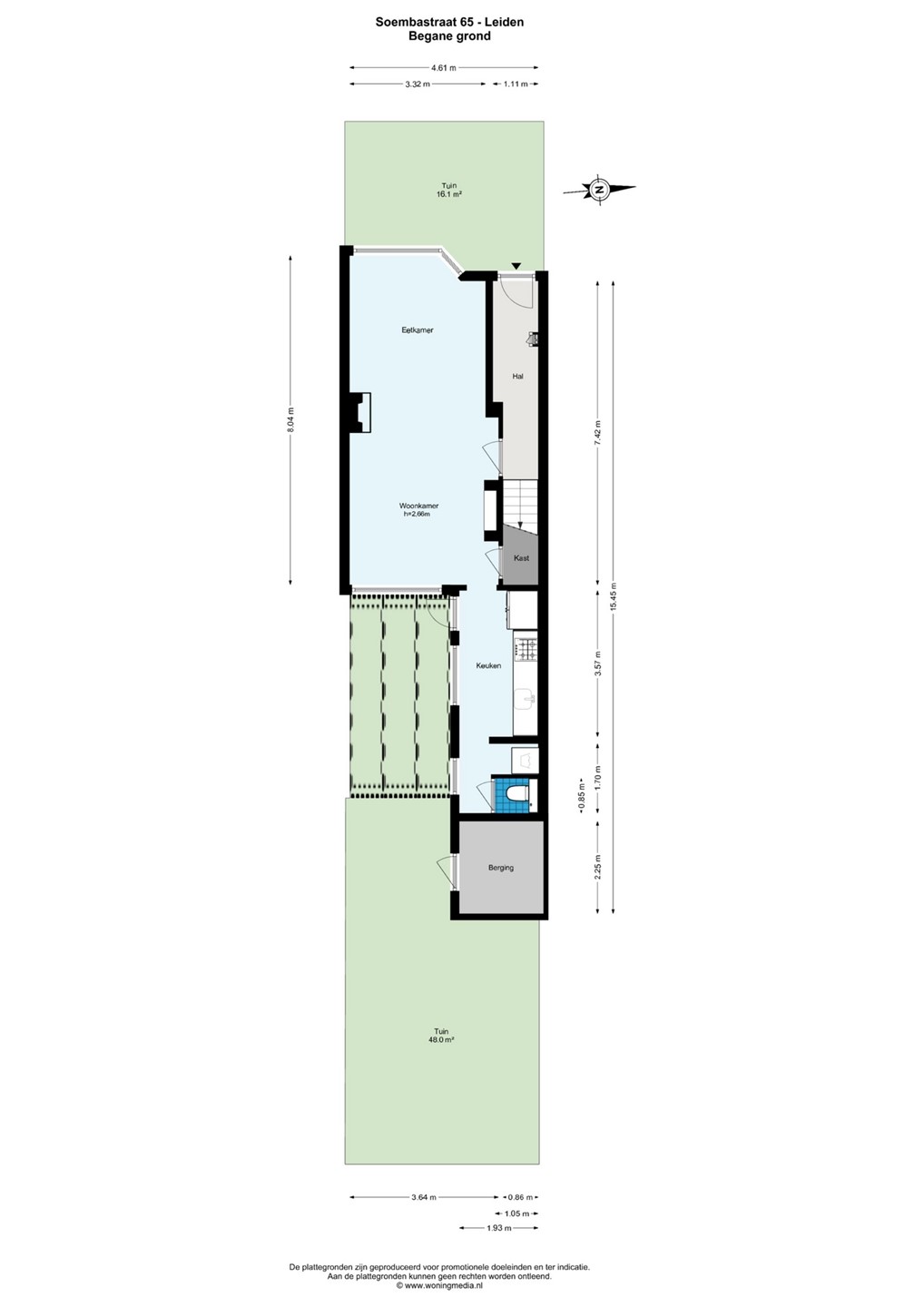
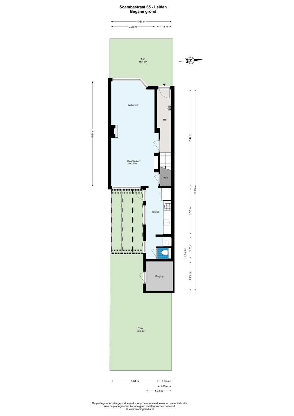
| Woonoppervlakte | 106,6 m² |
| Inhoud | 365 m³ |
| Oppervlakte overige inpandige ruimten | 4,5 m² |
| Indeling | |
|---|---|
| Aantal bouwlagen | 3 |
| Aantal kamers | 4 (waarvan 3 slaapkamers) |
| Aantal badkamers | 1 (en 2 aparte toiletten) |
| Locatie | |
|---|---|
| Ligging | Dichtbij openbaar vervoer, In woonwijk, Nabij school, Nabij snelweg |
| Tuin | |
|---|---|
| Type | Voortuin |
| Staat | Normaal |
| Tuin 2 - Type | Achtertuin |
| Tuin 2 - Hoofdtuin | Ja |
| Tuin 2 - Oriëntering | Oosten |
| Tuin 2 - Heeft een achterom | Ja |
| Tuin 2 - Staat | Normaal |
| Energieverbruik | |
|---|---|
| Energielabel | D |
| CV ketel | |
|---|---|
| CV ketel | Remeha |
| Warmtebron | Gas |
| Bouwjaar | 2022 |
| Combiketel | Ja |
| Eigendom | Eigendom |
| Uitrusting | |
|---|---|
| Warm water | CV-ketel |
| Verwarmingssysteem | Centrale verwarming |
| Ventilatie methode | Natuurlijke ventilatie |
| Keukenvoorzieningen | Inbouwapparatuur |
| Badkamervoorzieningen | Dubbele wastafel, Inloopdouche |
| Heeft kabel-tv | Ja |
| Tuin aanwezig | Ja |
| Telefoonaansluiting aanwezig | Ja |
| Beschikt over een internetverbinding | Ja |
| Heeft schuur/berging | Ja |
| Kadastrale gegevens | |
|---|---|
| Kadastrale aanduiding | Leiden N 1860 |
| Perceeloppervlakte | 24 m² |
| Omvang | Geheel perceel |
| Eigendomsituatie | Eigen grond |
| Kadastrale aanduiding | Leiden N 1436 |
| Perceeloppervlakte | 99 m² |
| Omvang | Geheel perceel |
| Eigendomsituatie | Eigen grond |
Beschrijving
Moderne, instapklare eengezinswoning met een zonnige en ruime tuin
Bent u op zoek naar een moderne, instapklare eengezinswoning met een zonnige tuin? Dan is deze woning aan de Soembastraat 65 precies wat u zoekt. Met een woonoppervlakte van circa 107 m², drie slaapkamers en een verzorgde afwerking biedt deze woning comfortabel woonplezier voor het hele gezin.
De lichte woonkamer vormt het hart van het huis en sluit mooi aan op de zonnige achtertuin. De ruime tuin is voorzien van een berging en praktische achterom, ideaal voor fietsen of tuinaccessoires.
Op de verdiepingen bevinden zich drie goed bemeten slaapkamers, waarvan één beschikt over een inloopkast. De moderne badkamer is stijlvol uitgevoerd en voorzien van een dubbele wastafel en een comfortabele inloopdouche. Het toilet is apart, wat extra praktisch is voor een gezin. De hedendaagse afwerking in de gehele woning zorgt ervoor dat u hier zonder klussen kunt intrekken.
De Kooi is een levendige en kindvriendelijke wijk in Leiden-Noord. De buurt kenmerkt zich door een prettige mix van karakteristieke woningen en vernieuwde voorzieningen. In de directe omgeving vindt u winkels, supermarkten, scholen, sportfaciliteiten en speelgelegenheden. Het bruisende centrum van Leiden is op korte fietsafstand bereikbaar en ook de uitvalswegen richting de A4 en A44 zijn goed toegankelijk. Openbaar vervoer is eveneens in de nabijheid aanwezig.
Kortom: een moderne en ruime gezinswoning met zonnige tuin op een centrale locatie in Leiden, een ideale plek om thuis te komen.
Bent u op zoek naar een moderne, instapklare eengezinswoning met een zonnige tuin? Dan is deze woning aan de Soembastraat 65 precies wat u zoekt. Met een woonoppervlakte van circa 107 m², drie slaapkamers en een verzorgde afwerking biedt deze woning comfortabel woonplezier voor het hele gezin.
De lichte woonkamer vormt het hart van het huis en sluit mooi aan op de zonnige achtertuin. De ruime tuin is voorzien van een berging en praktische achterom, ideaal voor fietsen of tuinaccessoires.
Op de verdiepingen bevinden zich drie goed bemeten slaapkamers, waarvan één beschikt over een inloopkast. De moderne badkamer is stijlvol uitgevoerd en voorzien van een dubbele wastafel en een comfortabele inloopdouche. Het toilet is apart, wat extra praktisch is voor een gezin. De hedendaagse afwerking in de gehele woning zorgt ervoor dat u hier zonder klussen kunt intrekken.
De Kooi is een levendige en kindvriendelijke wijk in Leiden-Noord. De buurt kenmerkt zich door een prettige mix van karakteristieke woningen en vernieuwde voorzieningen. In de directe omgeving vindt u winkels, supermarkten, scholen, sportfaciliteiten en speelgelegenheden. Het bruisende centrum van Leiden is op korte fietsafstand bereikbaar en ook de uitvalswegen richting de A4 en A44 zijn goed toegankelijk. Openbaar vervoer is eveneens in de nabijheid aanwezig.
Kortom: een moderne en ruime gezinswoning met zonnige tuin op een centrale locatie in Leiden, een ideale plek om thuis te komen.